-
[니켄세케이의 장애아동 생활 공간 이야기] 제4회 스태프와 공간 인식을 공유하기 위한 다양한 시도 4-1volume.61 2025. 8. 5. 04:38
障がい児のための「日々の生活」の場を考える|第3回 スタッフとの信頼関係を築く上で欠かせない“泊まり込み体験”|日建グループ
장애아동을 위한 “일상생활”의 장소를 고찰하다
니켄세케이(NIKKEN SEKKEI)는 건축 설계 및 감리와 더불어 도시 디자인, 엔지니어링, 인테리어에 이르기까지, 도시와 건축에 관한 종합 컨설팅 업무를 실시하는 글로벌 서비스 기업입니다. 1900년에 일본에서 창업하여 올해로 125주년을 맞이하며, 3개의 그룹 계열사와 11곳의 해외 거점을 운영하고 있습니다. <EXPERIENCE, INTEGRATED>라는 기업 이념 하에 다양한 전문성과 축적된 경험을 바탕으로, 클라이언트와 사회의 기대에 부응하고 더 나은 사회 환경 디자인을 개척하기 위하여 노력하고 있습니다.
https://www.nikken.co.jp/en/제4회 스태프와 공간 인식을 공유하기 위한 다양한 시도
건축에 대한 지식이 없는 스태프들과 건축 공간에 대한 개념 공유하기
우리 설계자들은 건축에 있어서는 프로입니다. 매일같이 도면을 그리고 도면으로 건축 공간을 바로 떠올릴 수가 있습니다. 그러나 클라이언트 측의 스태프 여러분은 건축에 대한 공부를 한 적이 없기 때문에, 도면을 보고 머릿 속에 3차원 공간을 그려내기란 쉽지 않습니다. 워크숍에 참여하며 직접 고안한 장애아동을 위한 공간의 방향성과 콘셉트가, 설계자가 그린 도면에 제대로 반영이 되어 있는지를 판단하기도 어렵습니다. 그때문에 건물이 완성된 후에 “이게 아니다”, “설계자들이 설명했던 것과 실제 만들어진 공간이 다르다”와 같은 반응이 나오기도 하는 것입니다.
이와 같은 점을 보완하기 위해서는, 공간을 입체적으로 그려낸 ‘조감도’나 ‘투시도’ 등의 건축 CG를 주로 이용합니다. 오늘날에는 컴퓨터로 도면을 그리고 이를 3차원 입체로 변환하여 CG를 그리는 일이 비교적 쉬워져서, 일반적인 설계 협의 과정에서 널리 이용됩니다. 또한 최근에는 CG의 재현 수준이 한층 향상되어, 얼핏 보면 이게 조감도인지 실제 준공 후 사진인지 헷갈리는 경우도 있을 정도입니다. 다만 이 건축 CG는 특정 시점(視点)에서 공간을 표현한 것이므로, 공간 전체를 파악하고 인식하는 데에는 한계가 있습니다. 더군다나 생활 공간을 나타내는 데 매우 중요한 요소인 ‘스케일감’을 파악하기가 대단히 어렵습니다.
지금부터 공간 전체를 인식하고 설계자와 스케일감 등을 공유하기 위해서 겪어 왔던 여러가지 방법들과 시행착오에 대하여 소개하고자 합니다.
모형으로 공간 인식 공유하기
건축 CG 외에도 통상적으로 이용되는 공간 인식 공유 방법이 바로 모형입니다. 눈으로 보기만 해야 하는CG와 달리, 모형은 직접 손에 들고 상하좌우 다양한 시점에서 볼 수 있어서 공간 전체를 인식하는 데 있어 매우 유용한 도구입니다.
아래 사진은 1/50의 축적으로 제작한 거실과 생활실의 모형에 소형 카메라를 넣어 실시간으로 뜨는 화면을 스태프들과 함께 보고 있는 모습입니다. 모형 속에 사람과 가구 등을 배치한 뒤 소형 카메라로 사람의 시선에서 공간과 스케일감을 확인할 수 있습니다. 최근에는 휴대전화의 카메라 기능을 활용하여 모형 내의 영상을 바로바로 대형 디스플레이에 띄우기도 합니다. 또한 모형의 바닥과 벽, 천장 등의 색과 나뭇결 등의 텍스쳐도 표현할 수 있어, 공간의 마감 후 이미지를 공유할 수도 있습니다.
모형은 위와 같은 장점이 있는 반면 제작하는 데 시간과 수고가 많이 들고, 그 자리에서 벽 위치를 옮기거나 천장 높이를 바꾸는 등의 변경을 할 수 없다는 점은 단점이라 할 수 있습니다.


모형 속에 소형 카메라를 넣어 영상을 통해 공간을 확인하는 모습 기존 건물을 통하여 공간 인식 공유하기
공간의 스케일감을 좀 더 실감나게 확인할 수 있는 방법은 기존에 사용 중인 현재 건물에 계획안 공간을 적용하는 방법입니다. 앞서 설명한 바와 같이 모형으로도 어느 정도의 스케일감을 알 수 있으나, 실제 치수만큼 정확하진 않습니다. 현재의 공간과 계획안을 비교하여 넓은지 좁은지, 천장 높이가 높은지 낮은지 등을 피부로 느낄 수 있습니다. 우리 설계자들도 기존 사례를 조사하여 도면 상에 계획안을 떨어뜨려 비교하기도 하고, 직접 그 장소에 다시 가서 실제 공간의 넓이와 높이 등을 재확인하는 경우가 많습니다.
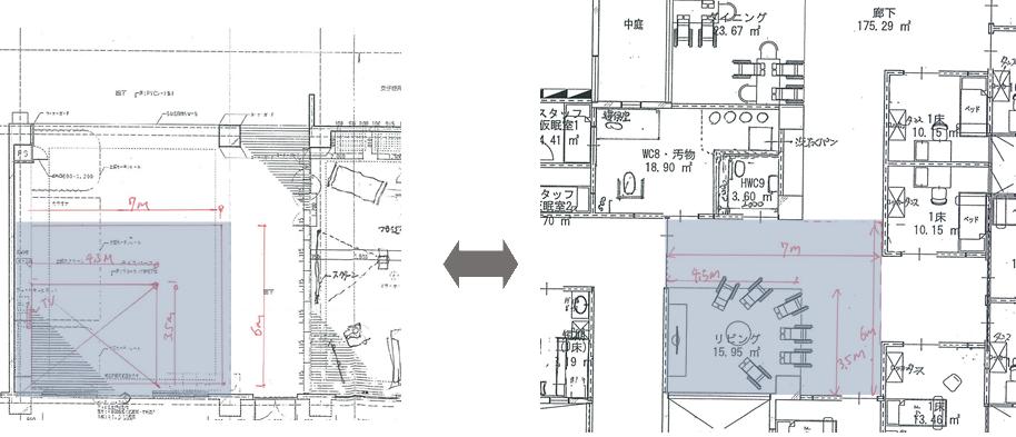
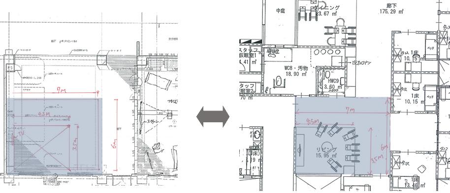
아래 도면과 사진은 현재 사용 중인 기존 건물 내부의 거실과 계획안의 거실을 도면으로 비교하고, 직접 건물을 찾아 넓이감을 확인하는 모습을 나타냈습니다. 이렇게 하면 “지금 공간에서는 휠체어를 이용하는 장애아동이 6명 가량 한꺼번에 쉴 수가 있고, 휠체어가 회전할 수 있는 공간도 확보할 수 있으니 넓이가 충분하다”는 결론에 도달할 수 있는 것입니다. 이렇듯 공간을 실제처럼 인식할 수 있어서 공간의 넓이를 실제 치수와 비슷한 수준으로 확인하기에 적합한 방법입니다. 다만 해당 공간 이외의 공간들은 계획안과 다른 상황이므로, 공간 전체의 모습을 계획안대로 바로 떠올릴 수 없는 것이 취약점이라 할 수 있겠습니다.

좌) 기존 건물의 거실 도면, 우) 계획안의 거실 도면 
기존 건물의 거실에 계획안의 공간을 적용하여 확인 목업을 통하여 공간 인식 공유하기
기존 건물을 이용하여 공간 인식을 공유하는 기법이 실제 치수로 공간을 확인할 수 있다는 장점을 갖고 있다면, 공간의 이미지를 쉽게 그리기 어렵다는 단점도 있다고 앞서 설명한 바 있습니다. 이 기법의 장점을 살리고 단점을 개선한 것이 바로 목업(Mock-up)이라 불리는 실제 치수 크기의 모형을 이용한 공간 인식 기법입니다.
목업에도 다양한 방법이 있으나 그 중 가장 대표적인 두가지 사례를 소개하겠습니다.
먼저 첫번째는 설계 단계에서 실시하는 ‘간이 목업’입니다. 좌측 하단의 사진이 그 예시입니다.
이는 화이트 보드나 기존 건물의 회의실 벽을 이용하여 휠체어용 화장실의 크기를 검증하는 모습입니다. 화이트 보드를 벽으로 간주하는 것인데 가벼워서 이동과 조절이 용이하다는 점이 장점입니다. 도면상의 화장실 크기에서 휠체어를 회전시킬 수 있는지, 휠체어와 보호자가 화장실에 들어가거나 변기에 옮겨 앉기에 충분한 공간이 확보되었는지 등을 검증할 수 있습니다. 간혹 바닥에 박스 테이프를 길게 붙여 벽 라인을 표시하기도 합니다. 이러한 방법은 큰 비용을 들이지 않고도 간편하게 실제 치수를 체험 가능하며, 센티미터 단위의 공간과 형상의 확인 및 조절이 가능합니다.
[이전 글 읽기] 제3회 스태프와의 신뢰 관계를 구축하기 위한 필수 요건 “숙식형 체험”글. 나카시마 키와무 中島 究 Kiwamu Nakashima
니켄세케이 설계감리부문 설계그룹 디렉터
나카시마 키와무 中島 究 Kiwamu Nakashima

니켄세케이 설계감리부문 설계그룹 디렉터
30여년의 설계 활동을 통하여 <구마모토현립 구마모토 카가야키노모리 지원학교>, <콘고 복지센터 카츠라기 니죠>, <기타큐슈 시립종합 치료교육센터> 등 장애아동 및 장애인 복지시설과 의료시설을 담당했다. 또한 <교세라돔 오사카>, <시가현립 비와호 박물관>, <나카노시마 페스티벌타워(페스티벌홀)>, <믹시 본사>, <고베 스마구청 및 어린이집> 등 스포츠 시설과 문화시설, 오피스와 관공소 등 폭넓은 분야의 설계 실적을 보유하고 있으며, 일본건축가협회 우수건축상, BCS상을 비롯한 다양한 수상 경력을 갖고 있다.
2016년에는 FC바르셀로나의 홈구장인 캄프누 스타디움 국제 설계 공모에서 우승하여 디자인팀을 이끌었고, 한국의 CJ LiveCity Arena 등 스포츠 엔터테인먼트 시설의 전문가로서 다양한 프로젝트에 참여하였다.
일급건축사, 일본건축가협회 등록건축가, 일본건축학회회원이며 인정 퍼실리티 매니저, 인테리어 플래너로서도 활동하고 있다.
728x90'volume.61' 카테고리의 다른 글
[DESIGN] 빛으로 수놓는 시간의 결 2025 여름밤 '서울라이트 DDP' (9) 2025.08.05 [무각의 삶, 김마저 작가의 예술과 가구] 조형의 또 다른 얼굴, 가구- 무각의 시작을 알리다 (7) 2025.08.05 발행인의 글 (3) 2025.08.05 [젊은 건축사의 Care-Full Space] 한국형 UBRC, 대학연계 시니어 레지던스의 새로운 가능성 (11) 2025.08.05 [의사가 들려주는 병원경영 이야기] 병원이 힐링의 장소가 될 수 있을까 • 스페인의 샤 웰니스 클리닉 호텔 (7) 2025.08.05 [송창민 푸드애널리스트의 건강한 맛집] 진지아 (9) 2025.08.04 [BOOK 신간소개] 여주엽의 유튜브 수업 (10) 2025.08.04 [편집장 FOCUS] 건축공간연구원×한국도시재생학회-지역 활성화를 위한 학술교류 릴레이 세미나 (6) 2025.08.04