-
[INVITATION] 프랑스 퐁쉬르욘느(Pont-sur-Yonne)에 위치한 노인 요양원volume.59 2025. 6. 4. 15:32
공간의 리듬을 변주하고 시각을 넓히는 치유 디자인
Nursing home for dependent elderly people in Pont-sur-Yonne
_ 프랑스 퐁쉬르욘느(Pont-sur-Yonne)에 위치한 노인 요양원
©David Romero-Uzeda
프랑스 퐁쉬르욘느(Pont-sur-Yonne)에 위치한 노인 요양원은 동선과 자연광, 자재를 최대한 활용하면서 거주자의 존엄성을 존중하는 쾌적한 디자인이 특징이다. 특히 설계자는 건물을 설계하면서 외부에서 빛이 유입되는 방향과 시각에 초점을 두고 전체 건물을 디자인한 점이 눈에 띈다. 이에 건물은 다른 곳에 비해 크고 작은 창이 많으며, 내부에서 다양한 빛이 흐르는 유동적인 감각과 입체감을 느낄 수 있다. 또한 다채로운 컬러 포인트를 내외부에 반영해 시각을 넓혀주는 하나의 에너지원으로 작용하게 했다. 그만큼 이번 프로젝트는 노인 환자들에게 무한한 에너지와 즐거움을 동시에 안겨주며 시각적인 악센트가 인상적인 공간으로 기억될 것이다.
글_박하나
설계 및 디자인_Dominique Coulon & associés
건축가_Dominique Coulon
보조 건축가_Jean Scherer, Florence Hænel, Steve Letho Duclos, Benjamin Rocchi
사진_David Romero-Uzeda
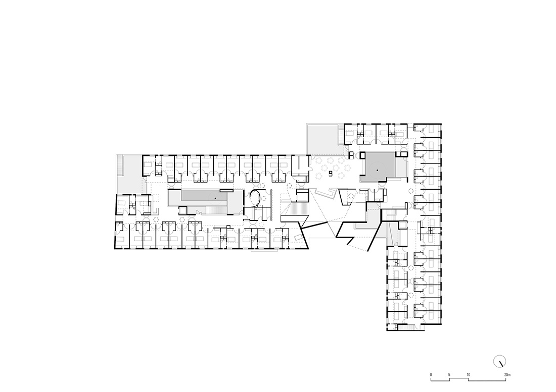
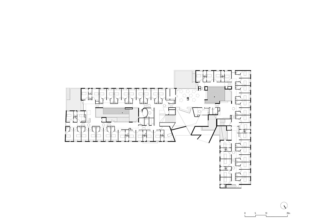
경사진 지형에 자연스럽게 어우러지도록 설계된 노인 요양원은, 92개의 거주자용 룸 + 1개의 게스트 룸(14개의 객실이 있는 알츠하이머 병동 1개), 접수 공간 및 애니메이션 센터, 의료 및 의료 상담실, 행정 및 직원실, 물류 및 기술실, 크롤 스페이스(천장이나 마루 밑의 배선·배관 등을 위한 좁은 공간)로 구성되어 있다. 입구는 마을 광장을 닮은 안뜰 주위에 배치되어 있으며, 욘느 계곡을 향하고 있다.

©David Romero-Uzeda 
©David Romero-Uzeda
중앙에는 마을 광장처럼 꾸며진 정원이 있어 매우 아늑한 분위기를 자아낸다. 건물의 어두운 블록들은 내부가 비어 있는 것처럼 보이며, 흰색 공간과 기하학적 형태들이 조화를 이루고 있어 독특한 미적 감각을 느낄 수 있게 한다. 또한 모든 방향에서 자연경관을 감상할 수 있고, 테라스에서는 강을 바라볼 수 있어 자연과 한층 어우러져 있다. 더욱이 공용 공간은 남쪽 햇살을 최대한 활용할 수 있도록 설계되어 밝고 쾌적한 환경을 자랑하며, 넓은 개구부를 통해 공원이 내려다보인다.

©David Romero-Uzeda
건물에는 두 개의 파티오가 깊이감을 더해주고, 모든 통로에는 자연광이 들어와 산책하기에 매우 이상적이다. 파티오는 방향이 바뀌는 곳마다 넓어지면서 따뜻한 핑크와 레드 계열로 꾸며진 휴식 공간으로 이어진다. 특히 인체공학적으로 설계된 벤치에는 거주자들이 함께 이야기를 나누며 소통할 수 있도록 편리하게 배치되었다.

©David Romero-Uzeda 
©David Romero-Uzeda
또한, 공용 공간들은 유동적이고 투명하게 만들어졌으며, 식당은 중앙 발코니 위치에 있어 로비를 바라보고 남쪽으로 넓게 열려 있다. 차양이 설치된 테라스도 추가되어 있어 거주자들의 삶의 질을 높여준다. 로비의 접수 공간은 벽면 곳곳에서 창을 통해 흐르는 채광으로 입체감을 드러내며 블랙컬러의 접수대를 더욱 돋보이게 한다. 특히 접수대는 전체 화이트 컬러의 내부 디자인에 포인트가 되어 외부 빛에 의한 시각적인 감성을 더욱 충만하게 이끌고 있다.
©David Romero-Uzeda 
©David Romero-Uzeda
내부 곳곳에는 크고 작은 창으로 빛의 연속성을 드러내고 있다. 외부 빛을 모으는 창은 요양원에서 꼭 필요한 설계 방식으로 빛의 충만한 움직임이 노인들의 운동성과 기능성에 큰 도움을 주고 있다. 특히 공원이 내려다보이는 창과 외부 건물이 보이는 창은 각기 다른 분위기로 일상적인 공간의 리듬을 변주한다. 설계자는 같은 곳만 보이지 않도록 디자인하여, 시각적인 즐거움으로 생각을 깨우고, 빛에 의한 역동성으로 움직임을 깨우는 데 주력했다.

©David Romero-Uzeda
또한 핑크와 레드 컬러로 각 구역별 포인트를 준 점도 눈여겨 볼 부분이다. 이러한 컬러감은 공간의 재미와 리드미컬한 율동감을 안겨주고 있다. 이 역시 노인 환자들에게 시각적 자극을 열어주고 공간을 구분할 수 있는 요소로 작동된다. 바닥과 벽면을 장식하는 따스한 컬러감은 공간에 활기를 띠고 밝은 기운의 에너지로 다가온다. 이러한 치유 환경은 노인들의 삶의 원동력이 될 것으로 기대된다.

©David Romero-Uzeda
20㎡ 크기의 룸은 매우 세심하게 설계되었고, 베이 창문과 가구 배치의 조화는 외벽의 두께감을 더욱 강조해 준다. 옐로우와 핑크, 민트그레이의 세 가지 유형의 방은 다양성을 추구하고 있으며, 각기 다른 색상별로 태양의 움직임을 고려한 디자인이 돋보인다. 각자의 방에서 보이는 외부 에너지와 내부의 색채는 서로 조화를 이루며 노인 환자들에게 편안함을 주도록 연출된 점이 인상 깊다.

©David Romero-Uzeda 
©David Romero-Uzeda 
©David Romero-Uzeda 
배치도 
지하층 평면도 
1층 평면도 
2층 평면도 
1) 건물은 경사면을 사용하여 풍경과 부드럽게 합쳐지도록 계획되었다. 
2) 입구 앞마당은 강과 마을을 내려다 보는 발코니로서 마을 광장처럼 설계되었다. 
3) 보행자 경로는 장애인이 주변 경관에 접근 할 수 있도록 돕는다. 
4) 내부 안뜰과 테라스 모두 접근이 가능하다. 
5) 알츠하이머 환자를 위한 유닛과 야외 공간의 독립적 배치 
6) 개방된 공용 공간은 동선에 빛과 볼거리를 제공한다. 728x90'volume.59' 카테고리의 다른 글
[젊은 건축사의 Care-Full Space] 특별함과 보편의 공간, 시니어를 위한 공간은 특별하지만 특별하지 않아야 한다. (5) 2025.06.04 [해안건축 신용호의 시니어 미디어] 국내 시니어 레지던스의 엑티브 VS 케어형 상품의 변화 추세 (4) 2025.06.04 [니켄세케이의 장애아동 생활 공간 이야기] 제2회 스태프와 함께 공간의 바람직한 모습에 대하여 고찰하는 참가형 설계 (5) 2025.06.04 [Special Column] San Raffaele Hospital_새로운 외과 및 응급 의료 센터 (2) 2025.06.04 [헬스케어트렌드 / ESG] 지속 가능한 헬스케어를 위한 디자인 전략 (2) 2025.06.04 발행인의 글 (1) 2025.06.04 [임진우 건축가의 '함께 떠나고 싶은 그곳'] 답사옴니버스 — 강원 2편 (4) 2025.06.04 과거와 현재를 조화롭게 구성한 아이소망 산부인과 (하) (2) 2025.06.04