-
[박원배 건축가의 Special Column] 전 병상 1인실제, 과연 가능할까?volume.24 2022. 6. 30. 20:17
병원의 다인실이 가진 큰 문제들로는 감염관리의 문제와 더불어 프라이버시의 부재를 들 수 있습니다. 이중 프라이버시 문제와 관련지어서는, 요새 환자들은 다인실 내에서 24시간 내내 커튼을 닫아두고 사용하고 있는데 이게 점차 이슈가 되고 있습니다.

환자커튼 또는 병상커튼이라고 부르는 이 커튼은 영어로는 ‘privacy curtain’이라고 부릅니다. 그럼 여기서 퀴즈! 환자커튼의 목적은 과연 무엇일까요? 빙고! 바로 ‘프라이버시’입니다.
환자가 환복할 때, 의료진의 처치 시 시각적 차단이 필요할 때, 가족들과 프라이빗한 담소를 나누고 싶을 때 남들에게서 시각적으로 차단할 수 있는 유일한 방편이기 때문입니다.
그런데 우리나라 다인실에서는 이 환자커튼이 남용되고 있습니다. 제가 어릴 적만 하더라도, 다인실 내에선 낮에는 서로 담소하는 분위기였고 밤에도 커튼을 닫아 두는 경우는 별로 없었습니다. 그러나 이제는 환자들이 밤낮을 가리지 않고 항상 커튼을 닫아둔 채로 생활하고 있습니다.
이로 인해 같은 병실 내에서 창가와 복도측에 위치한 환자들 간에 심각한 불평등이 발생합니다. 창가 환자는 자연채광과 조망, 게다가 창문을 열 수 있는 권리까지 독차지하고, 복도측 환자는 어쩔 수 없이 커튼 안에 갇혀 생활해야 합니다.
인터넷을 검색해보면, 이에 대한 찬반론이 다양합니다. “난 사생활이 중요하다. 커튼을 치건 말건 내 권리이다”, “그렇게 사생활이 중요하면 1인실에 가야지, 왜 다른 사람들을 불편하게 만드냐?” 등등.. 의료진 역시 이에 대해 불평합니다. “회진할 때 도무지 어느 커튼을 열어야 내 환자가 있는지 알 수 없다.”
결국 궁극적인 유일한 해법은 전 병상 1인실제뿐입니다. 그러나 우리나라는 공공의료 시스템을 근간으로 하고 있기 때문에 ‘국민건강보험 요양급여 기준에 관한 규칙’에 의거하여 총 병상수 중 다인실이 차지해야 하는 비율이 규정되어 있습니다. (현재는 80%)
그러나 생활수준이 올라감에 따라 1인실에 대한 환자들의 요구는 점점 커지고 있고, 특히 코로나 팬데믹을 거치면서 감염관리 차원에서 다인실의 비중을 낮추고 1인실 비중을 올려야 된다는 의료계의 요구가 거세지고 있는 상황입니다.
실제로 오래전 이대서울병원은 현상설계 당시 획기적인 계획을 내놓았습니다. 수가 적용을 받지 않는 일반 1인실과는 별도로, 최소한의 면적으로 구성한 1인실을 디자인하여 이 병상들에 다인실 수가를 적용한다는 계획이었습니다. 국내 최초의 전 병상 1인실제에 도전한 것이죠.
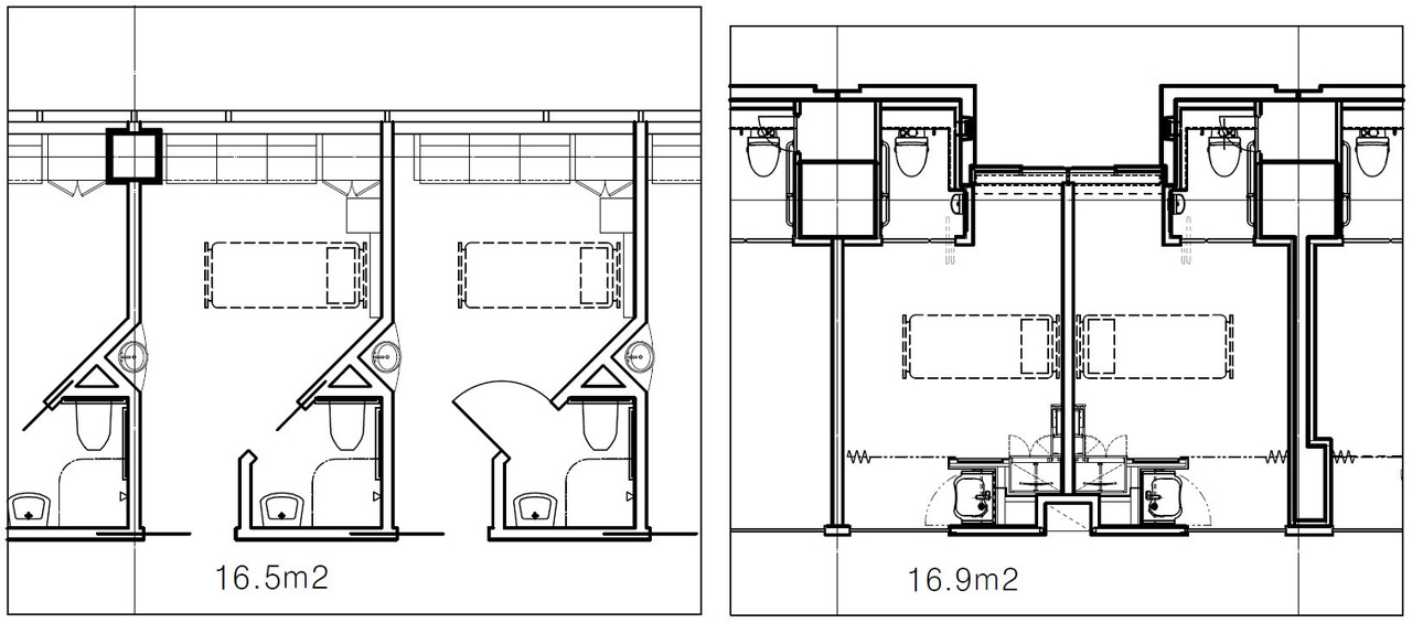
그런데 다인실 수가 적용을 받는 5평짜리(16.5㎡) 1인실은, 당시의 일반적인 1인실 규모(22~26㎡)에 비한다면 무척 작은 크기였습니다. 이로 인해 설계가 진행되는 과정에서, 이러한 1인실 면적과 운영계획을 재고하기에 이르렀고, 결국엔 전 병상 1인실제를 포기하기에 이릅니다.

[이대서울병원 현상안의 1인실과 일반적인 1인실 비교] 하지만 지금은 당시와는 다소 상황이 달라진 것 같습니다. 지난 칼럼에서도 언급했듯이, 차세대 병원들은 장기적 안목에서 6.6m를 탈피하여 보다 넓은 모듈을 채택하려는 추세이고, 1인실에 대한 수요도 예전과는 다르게 많이 늘고 있습니다.

[7.2m 모듈을 적용한 병실 디자인] 위 그림에서 보다시피, 만약 향후에 6.6m가 아닌 7.2m 모듈을 적용하여 4인실을 계획하게 된다면, 실당 면적이 56㎡ 이상에 달할 수도 있습니다. 이 면적은 1인당 면적으로 나누면 인당 14.5㎡로서, 이대서울병원 때 제안되었던 1인실 16.5㎡에 비해 그리 큰 차이가 나지 않습니다. 병상당 2㎡ 정도인데, 이 격차가 더 준다면 언젠가는 전 병상 1인실제가 가능하지 않을까요?
그러나 한 가지 더 검토해야 할 일이 있습니다. 이대서울병원 당시 16.5㎡가 협소하다고 해서 거부되었다면, 1인실의 최소 크기는 과연 얼마나 되어야 할까요? 특히 앞으로는 간호간병 통합서비스의 적용과 더불어 예전처럼 보호자 공간이 크게 필요 없을지도 모르겠습니다.

[이대서울병원 현상안의 1인실과 아시카가적십자병원 1인실] 위 우측 그림은 일본의 아시카가 적십자병원의 무료환자 1인실입니다. 이 병원은 전 병상 1인실제를 적용하고 있는데, 크기가 작은 무료환자용의 1인실 면적은 16.9㎡입니다. (다만 샤워공간이 없는 걸로 보아 환자들은 공용 샤워실을 이용하는 구조인 것 같습니다.)
이러한 사례들과 우리나라 문화나 정서를 고려해 볼 때, 1인실의 최소 면적은 18㎡ 정도는 되어야 할 것 같습니다. 당장은 불가능하겠지만 언젠가는 우리나라 병원들도 전 병상 1인실제로 가는 날이 올 것입니다. 이를 위해 더 많은 유닛 평면 스터디도 필요하겠지요.
물론 정책적인 검토와 결정이 선행되어야 하겠지만, 물리적인 조건과 비용만 따져본다면, 그 시점은 아마도 점차 커지고 있는 4인실 하나와 타이트하게 계획된 1인실 4개 사이의 면적이 그리 차이가 나지 않는 시점, 그래서 초기투자비나 유지관리비 면에서 그리 큰 차이가 나지 않는다고 판단하는 시점이 되지 않을까요? ■
글. 박원배 건축가
정림건축 / 한국의료복지건축학회 이사
728x90'volume.24' 카테고리의 다른 글
[임진우 건축가의 '함께 떠나고 싶은 그곳'] 뉴욕 뉴욕....! (0) 2022.07.27 [최경숙 간호부장의 노인병원 애상] 간호부서장으로 리더가 된다는 것 (0) 2022.07.02 New Mestre Hospital (0) 2022.07.01 [이현주 병원 마케터가 바라본 짧고 얕은 문화이야기] 무한한 꿈과 자유, 시를 품은 그림을 만나다 (0) 2022.06.30 [임진우 건축가의 '함께 떠나고 싶은 그곳'] 예술의 섬, 나오시마 (0) 2022.06.28 [마태호 원장의 책 해방일지] 나는 고백한다, 현대의학을 (0) 2022.06.28 [인천가톨릭대학교 디자인콘텐츠학과] 웰다잉 서비스, 삶과 죽음을 디자인하다. (0) 2022.06.28 [이수경 원장의 행복을 주는 건강 코칭] 기본기가 답이다! (0) 2022.06.28