-
[Special Column] 건축과 의학이 새롭게 공존하는 유토피아적인 병원volume.54 2024. 12. 27. 22:25
건축과 의학이 새롭게 공존하는 유토피아적인 병원
AL DAAYAN HEALTH DISTRICT MASTERPLAN
12 OMA_Al Daayan Medical District_copyright HMC 이번 프로젝트는 개발되지 않고 버려진 빈 땅에 건축과 의학이 새롭게 공존하는 유토피아적인 병원 설계로, 미래 글로벌 트렌드를 주도할 것으로 기대된다. 아무것도 없는 사막의 오아시스처럼 모듈형의 최첨단 병원은 한 지구를 형성한다. 각 모듈은 각기 다른 형식과 패턴으로 구현되었으며, 하나로 모아졌을 때 이상적인 형식미를 추구한다. 모듈 안에 자생식물과 단지, 정원, 병실, 여러 병원 시설 등이 들어서 있으며, 이를 위에서 내려다봤을 때, 마치 여러 모양의 초콜릿이 들어있는 큐브 형태의 초콜릿 박스를 연상케 한다. 환자는 병실에서 창밖의 정원을 볼 수 있고, 휠체어를 타고 넓은 정원으로 이동이 가능해 최적의 치유 환경을 제공한다. 한가지 특징은 3D 프린팅으로 외관을 변형할 수 있다는 점이다. 3D로 구현된 외관의 이동성과 유동성은 지속 가능한 미래 병원 구현에 하나의 모델을 제시할 수 있을 만큼 획기적이다. 또한 이곳에 쓰여질 식품과 약초의 경우 자급자족이 가능한 농장이 마련된 만큼, 모든 시설이 구비된 신개념의 글로벌 헬스케어 마스터플랜을 실현한다.
글. 박하나 편집장
설계 담당 및 제공. OMA/REINIER DE GRAAF
클라이언트. Hamad Medical Corporation
이미지 제공. copyright HMC
영상 제공. Squint/Opera
지난 2021년에 OMA(Office for Metropolitan Architecture, 네덜란드 로테르담 기반의 건축 설계 사무소)의 레이니어 데 그라프(Reinier de Graaf)는, 엔지니어링 회사인 뷰로 하폴드(Buro Happold)와 함께 하마드 메디컬 코퍼레이션(Hamad Medical Corporation(HMC))의 의뢰로, 카타르 도하의 알 다얀 헬스 디스트릭트(Al Daayan Health District) 설계를 완료했다. 130만 제곱미터의 개발되지 않는 땅에 위치한 이 프로젝트는 의학의 급속한 변화와 관련하여 모듈성, 조립식 및 자동화의 잠재력을 탐구했다. 이곳은 건축과 의학의 새로운 공생 가능성을 제공한다.

08 OMA_Al Daayan Medical District_copyright HMC 이 지역의 중심은 3차 교육 병원이자 여성 및 어린이 병원, 외래 진단 센터를 하나로 모은 2층 건물로, 총 1,400개의 병상을 보유하고 있다. 임상 시설은 1층에 위치하고, 병동 역시 1층에 있어 엘리베이터 의존도를 줄이고 환자가 복합 단지의 넓은 정원을 즐길 수 있다. 그만큼 이슬람 의학 건축에서 오랜 역사를 가진 치유 공간이라 할 수 있다.
현장에서 조립이 가능한 십자형 모듈식 유닛은, 진행 중인 프로세스를 최소한으로 재구성하고 확장할 수 있어 향후 시설을 적응시키는 데 드는 비용을 크게 낮출 수 있다. 3D 프린팅은 외관 디자인의 무한한 변형을 허용하여 일반적으로 엄격함을 특징으로 하는 건축 유형에 장식을 다시 도입할 수 있다. 병원은 식품과 약초를 공급하는 하이테크 농장, 전용 물류 센터, 태양광 농장을 자체적으로 운영하고 있다. 그중 하이테크 농장은 현지 의약품 생산을 위한 식품과 의료용 식물을 공급한다. 모든 지원 시설은 자동화된 지하 순환 시스템을 통해 병원과 연결된다. 또한 병원은 전용 물류 센터와 태양광 농장을 통해 자율적으로 기능할 수 있다.

11 OMA_Al Daayan Medical District_copyright HMC 
03 OMA_Al Daayan Medical District_copyright HMC 
10 OMA_Al Daayan Medical District_copyright HMC 앞서 언급했듯, 알 다얀 헬스 디스트릭트는 카타르의 최고 비영리 의료 서비스 제공업체인 하마드 메디컬 코퍼레이션(HMC)의 의뢰를 받았다. 최소한의 글로벌 공급망 의존도와 저비용으로 건설이 가능한 병원은, 서구에서 개발된 기존 병원 모델의 새로운 대안이 될 수 있다. 특히 전 세계에서 채택 가능한 프로토타입으로 자리매김하는 것을 목표로 한다.
숀 매든(Sean Madden, HMC): “의료 혁신은 기하급수적으로 발전하고 있다. 한편, 병원을 실현하는 시간은 1950년대 이후로 거의 변하지 않았다. 이 프로젝트는 병원 자체의 알려지지 않은 미래를 수용하여 미래의 병원을 정의함으로써, 기존 상황에서 벗어날 방법을 제공하고자 한다.”
레이니어 데 그라프(Reinier de Graaf, OMA): “건축가들은 오랫동안 병원에 최종 솔루션을 제공하려고 노력한다. 이 제안은 반대쪽 끝에서 시작했다. 병원은 영원히 건설 중인 건물 유형으로 보고, 공간과 시간을 동등하게 고려해야 하는 유기체로 봐야 한다.”
개빈 톰슨(Gavin Thompson, Buro Happold): “대형 병원의 복잡한 기능적 요구 사항과 최근 위기에서 얻은 교훈은, 건축가와 엔지니어의 협업 방식을 재창조할 독특한 기회를 만들어낸 것이다.”

04 OMA_Al Daayan Medical District_copyright HMC 한편, 지난 ‘2024 병원건축포럼’에서 김선국 現 SlowArk Partners 대표는 이번 프로젝트를 다음과 같이 설명했다. “알 다얀 헬스 디스트릭트는 현장에서 조립식으로 디자인된 십자가 모양의 모듈식 유닛으로 구성된다. 하나의 십자가가 한 모듈이다. 이것이 병동의 한 모듈이 되고, 다른 모듈은 또 다른 모습으로 나오고 있다. 4개의 퍼즐을 만들어 굉장히 합리적인 방식으로 OMA답게 만든 점이 특징이다. 조감도를 보면 매우 기하학적이고 중동에서 아주 좋아하는 패턴들을 사용했는데, 만약 이대로만 지어진다면 굉장히 유토피아적인 병원이 될 것이다.”

09 OMA_Al Daayan Medical District_copyright HMC 
01 OMA_Al Daayan Medical District_copyright HMC 
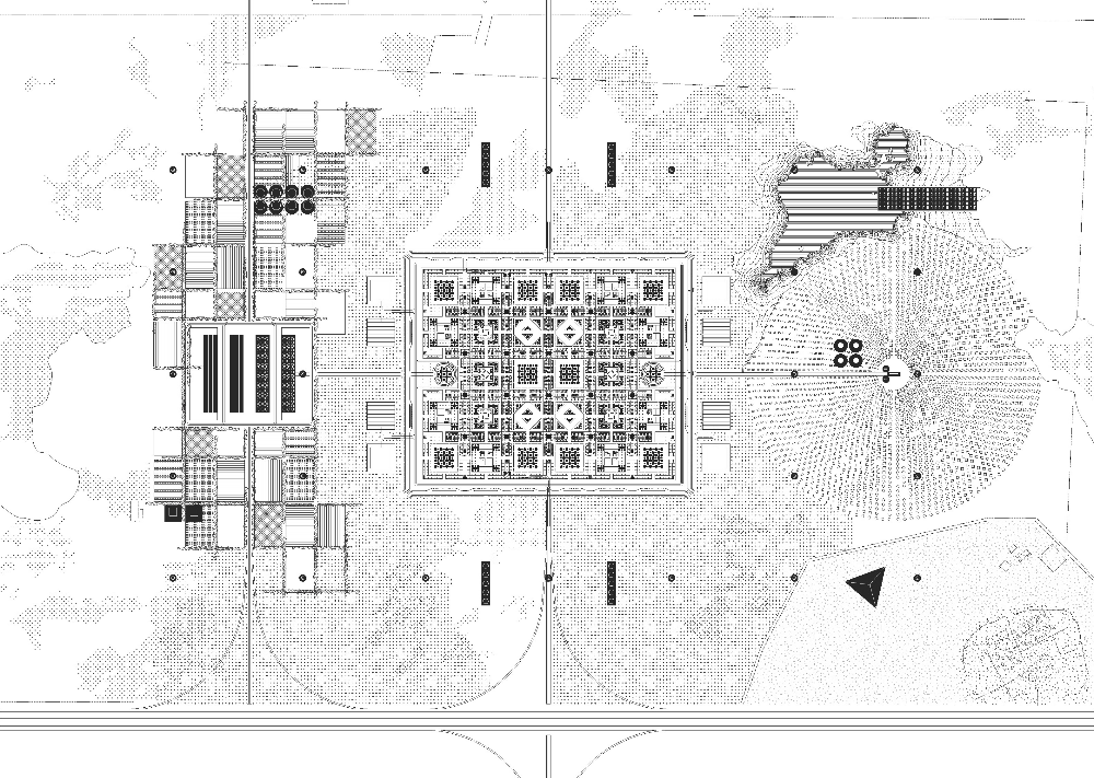
05 OMA_Al Daayan Medical District_first floor_copyright HMC 
06 OMA_Al Daayan Medical District_ground floor_copyright HMCjpg 
07 OMA_Al Daayan Medical District_copyright HMC 
02 OMA_Al Daayan Medical District_copyright HMC 하마드 메디컬 코퍼레이션(HMC)은 카타르의 2차 및 3차 의료의 주요 제공자이며, 중동의 선도적인 병원 클라이언트 중 하나이다. 알 다얀 헬스 디스트릭트(Al Daayan Health District)는 OMA 파트너 레이니어 데 그라프(Reinier de Graaf)가 주도했으며, 프로젝트 관리자 알렉스 데 용(Alex de Jong) 및 프로젝트 설계자 카베 데비리(Kaveh Dabiri)가 함께했다.
영상은 크리에이티브 스튜디오 스퀸트/오페라(Squint/Opera)에서 제작했다.
728x90'volume.54' 카테고리의 다른 글
국내 피부 미용 트렌드를 주도할 더힐피부과의원 (하) (0) 2025.01.03 국내 피부미용의 선두 주자 더힐피부과의원 (상) (0) 2025.01.03 [의사가 들려주는 병원경영 이야기] 진통제보다 동물 친구들 • 미국의 헴비 어린이병원 (0) 2025.01.02 [양재혁의 바이오Talk 헬스Talk] 미래지향적인 의료 빅데이터의 활용에 대한 제언 (0) 2025.01.02 [INVITATION] 루프(Loops): 병원에서의 매혹적인 명상 경험 (0) 2024.12.27 [편집장 FOCUS] 2025 주목해야할 트렌드 인사이트 (0) 2024.12.27 [EXHIBITION] 행복을 찍는 사진작가, 안나 앤 다니엘 (0) 2024.12.27 [해안건축 신용호의 시니어 미디어] 시니어 레지던스 기획 및 설계, 그 특별한 공간의 전략을 바라보다 (0) 2024.12.27