-
Elderly housing in a monumental monastery complexvolume.10 2021. 5. 3. 15:31
- 위치 : 틸부르흐, 네덜란드
- 설계 : Shift Architecture Urbanism
- 연면적 : 7,278㎡
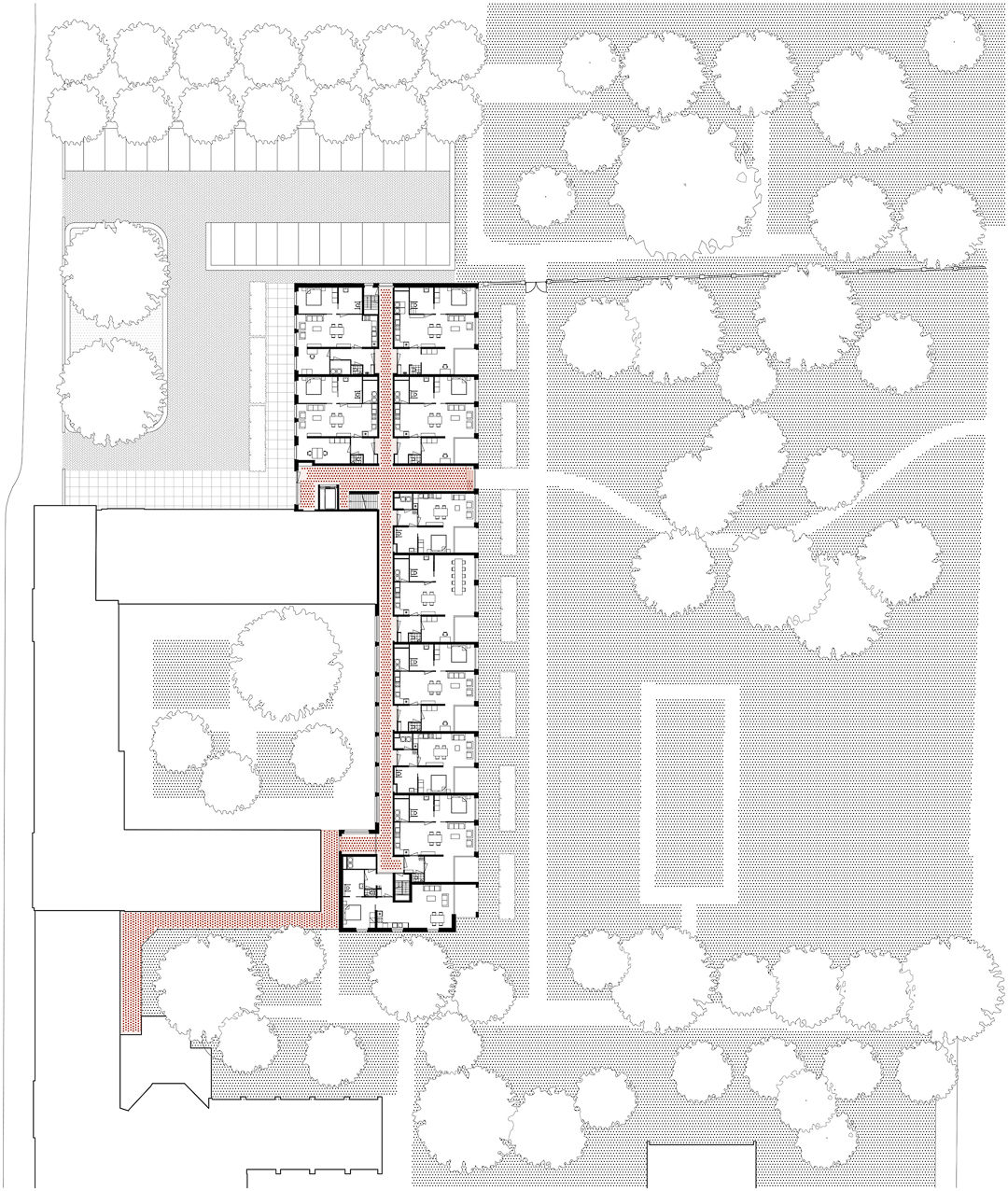
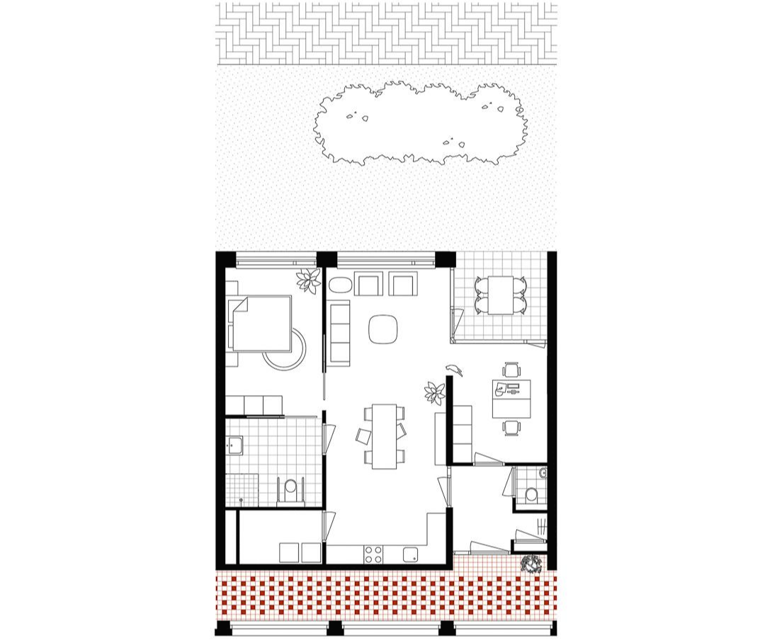
네덜란드 틸버그에 위치한 오우데 데이크 수도원을 확장하여 요양원과 평신도들을 위한 아파트를 설계했다. 이 4층 건물은 19세기 중반까지 거슬러 올라가는 역사적인 수도원의 남동쪽 가장자리에서 뻗어 있다. 증축을 통해 24개의 주거동과 36개의 치료가 필요한 환자를 위한 36개의 아파트를 제공한다.




기존의 구조와 잘 가꾸어진 정원을 보완하며 시대의 요구에 맞는 프로그램을 수용하기 위해 원래 수도원의 스타일을 그대로 계승하고 있다. 이는 증축되는 아파트 또한 수도원이 가지고 있는 풍부한 역사적 맥락을 표출한다고 볼 수 있다.
정원이 커뮤니티에 개방되면서 끼칠 영향을 고려하기 위해, 정원의 형태와 성격을 보존하는 방향으로 증축을 진행했다. 때문에 건물은 독특한 외부 공간을 정의하는 벽으로 인식된다. 요양병원과 장방형의 아파트 건물을 통해 두 개의 독립적인 중정이 새로 생겼다. 하나의 중정은 일반에게 공개된다. 다른 중정은 요양병원과 아파트로 둘러싸여 있어 어르신들을 위한 사적인 공간을 제공한다.





장방형의 건물은 바라보는 위치에 따라 다른 표정(파사드)를 지니고 있는데, 중정을 바라보는 쪽은 벽돌로 된 단순한 면에 큰 창문을 내었다. 내부의 1층은 유리로 둘러쌓인 아케이드를 통해 중정과 자연스럽게 연결된다. 도시를 바라보는 쪽은 기존 수도원이 가지고 있는 파사드를 따라서 더 얇고 긴 창문을 내었다.




장방형의 건물은 바라보는 위치에 따라 다른 표정(파사드)를 지니고 있는데, 중정을 바라보는 쪽은 벽돌로 된 단순한 면에 큰 창문을 내었다. 내부의 1층은 유리로 둘러쌓인 아케이드를 통해 중정과 자연스럽게 연결된다. 도시를 바라보는 쪽은 기존 수도원이 가지고 있는 파사드를 따라서 더 얇고 긴 창문을 내었다.






'volume.10' 카테고리의 다른 글
아주대학교 요양병원 김주형 진료부원장 (0) 2021.09.02 발행인의 편지 (0) 2021.05.02 [김남형 교수의 '경험의 눈을 가진 평생학습자'] 준비된 경험 (0) 2021.05.02 코로나 백신 '수원시 1호 접종' 김주형 아주대요양병원 진료부원장 (0) 2021.04.29 Nepean Mental Health Centre (0) 2021.04.29 [임진우 건축가의 '함께 떠나고 싶은 그곳'] 한강 상류 호반산책 (0) 2021.04.29 [박효진 교수의 '맛있는 집'] 도다리 쑥국 (0) 2021.04.29 요양시설 리모델링의 방향 (0) 2021.04.29
