-
Nepean Mental Health Centrevolume.10 2021. 4. 29. 17:42
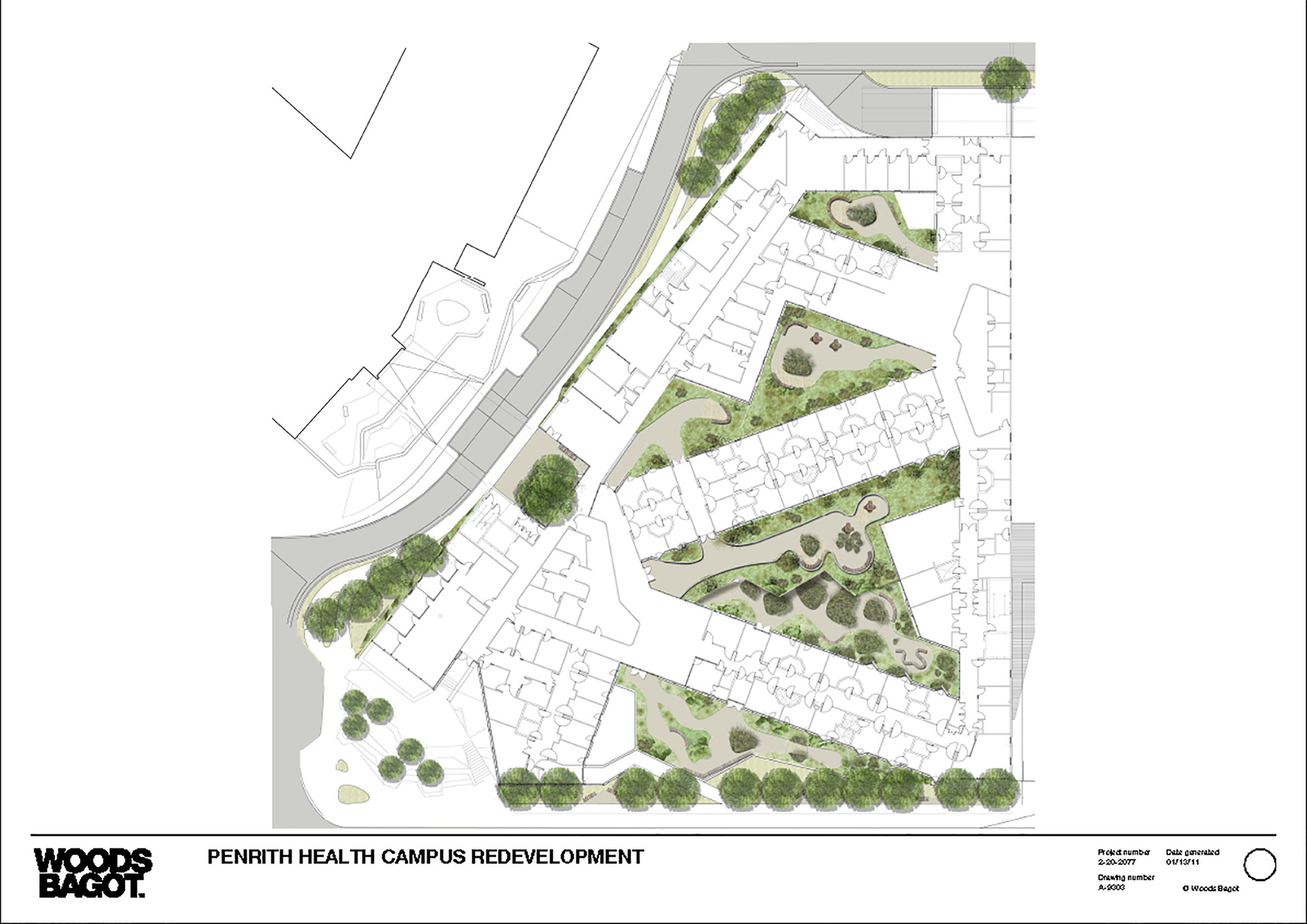
- 위치 : 펜리스, 호주
- 설계 : Woods Bagot
- 연면적 : 7,278㎡

고령화 사회에 접어들고 노인 인구가 증가하는 사회구조의 전반적인 변화는 노인들을 위한 헬스케어 서비스 이용 증가를 불러왔고, 질 높은 의료서비스 확충을 사회에 요구하게 된다. 이에 호주 킹스우드에 지어지는 네핀 정신건강센터 또한 네핀 병원으로부터 확충된 부지에 지어지며, 그 요구를 수용하는 복합 공간으로 자리 잡게 되었다.




네핀 정신건강센터의 설계 방향은 정신건강을 관리함에 있어 회복을 위한 재생, 치유환경을 조성하는 게 얼마나 중요한지를 보여주는 사례가 된다. 이 병원은 지역사회와 통합하고 인접한 병원시설과 연계된 서비스를 제공받을 수 있도록 구성되어 있다.


총 64개의 개인 병실은 이 곳에 머무르는 중증, 급성, 그리고 특별 정신치료를 위한 노인들에게 제공되며, 외래환자를 위한 별도의 입원 병동도 설계했다.
하드 스틸과 글래스 커튼월로 구성된 외부는 인접한 병원과의 연결성을 보여주고, 친근한 느낌을 통한 치유효과에 집중한 인테리어와 중정에 대비되는 모습을 보여준다. 치료를 위해 조성된 중정은 병원에서 쉽게 접근이 가능하며, 시간에 따라 변화하는 태피스트리를 이용하여 치료를 통한 회복과 재생이 눈에 와 닿을 수 있도록 한다.




728x90'volume.10' 카테고리의 다른 글
Elderly housing in a monumental monastery complex (0) 2021.05.03 발행인의 편지 (0) 2021.05.02 [김남형 교수의 '경험의 눈을 가진 평생학습자'] 준비된 경험 (0) 2021.05.02 코로나 백신 '수원시 1호 접종' 김주형 아주대요양병원 진료부원장 (0) 2021.04.29 [임진우 건축가의 '함께 떠나고 싶은 그곳'] 한강 상류 호반산책 (0) 2021.04.29 [박효진 교수의 '맛있는 집'] 도다리 쑥국 (0) 2021.04.29 요양시설 리모델링의 방향 (0) 2021.04.29 레이다 센서 기반 실시간 낙상감지 서비스 (0) 2021.04.29
