-
서초 김연진의 퓨린피부과의원volume.26 2022. 9. 5. 15:16
개원 20주년을 맞아 새롭게 리모델링한 퓨린피부과의원. 갤러리와 같은 공간을 원했던 클라이언트의 요구사항에 맞춰 아이보리 톤의 깨끗한 공간을 만들고 이와 대비되는 화려한 대리석으로 마감하여 공간의 우아한 무드를 담았다. 한정된 예산과 공간 내에서 기존의 불편함을 개선하고 새롭게 시작하는 의지를 담고자 리모델링한 프로젝트이다.
대기공간 & 복도
좁은 입구에서 대기공간을 확장감 있게 보여주기 위해 인포데스크를 사선으로 배치하여 공간을 보다 더 깊이감 있게 구성하고, 부드러운 곡선과 은은한 라인조명, 차분한 아이보리 톤을 사용해 더 아늑한 공간으로 연출하였다.

ⓒHW studio 
ⓒHW studio 
ⓒHW studio 
ⓒHW studio 높은 층고와 긴 복도를 따라 각 진료실을 알려주는 룸 사인과 제작조명으로 디자인 요소를 담아냈으며, 제작조명은 각 재실을 알려주는 센서 역할도 한다.

ⓒHW studio 
ⓒHW studio
VIP 대기실
환자뿐만 아니라 일반 사람들과 지식을 나누기 위해 유튜브를 시작한 원장님을 위해 VIP 대기실은 필요시 유튜브 촬영공간으로도 활용 가능하도록 프라이빗하면서 고급스러운 분위기를 연출하였다. 이를 위해 전체 유리월에 시스루 커튼을 설치하고 디자인적으로 담아낸 손잡이와 나뭇결이 느껴지는 고급스러운 우드 마감재, 천장 이중 간접조명으로 안온한 무드의 공간을 구현하였다.

ⓒHW studio 
ⓒHW studio
파우더룸
파우더룸은 복도에서 노출을 최소화하되, 답답하지 않게 브론즈 유리로 파티션 역할을 했으며 고급스러운 무광 블랙 벽매립 수전과 대리석으로 고급스러움을 담아냈다.

ⓒHW studio 
ⓒHW studio 
ⓒHW studio 
ⓒHW studio
관리실다인 관리실은 천장까지 파티션을 설치해 각 베드를 분리시켰으며, 디밍기와 압출등을 설치해 환자의 편의를 도왔다.

ⓒHW studio 
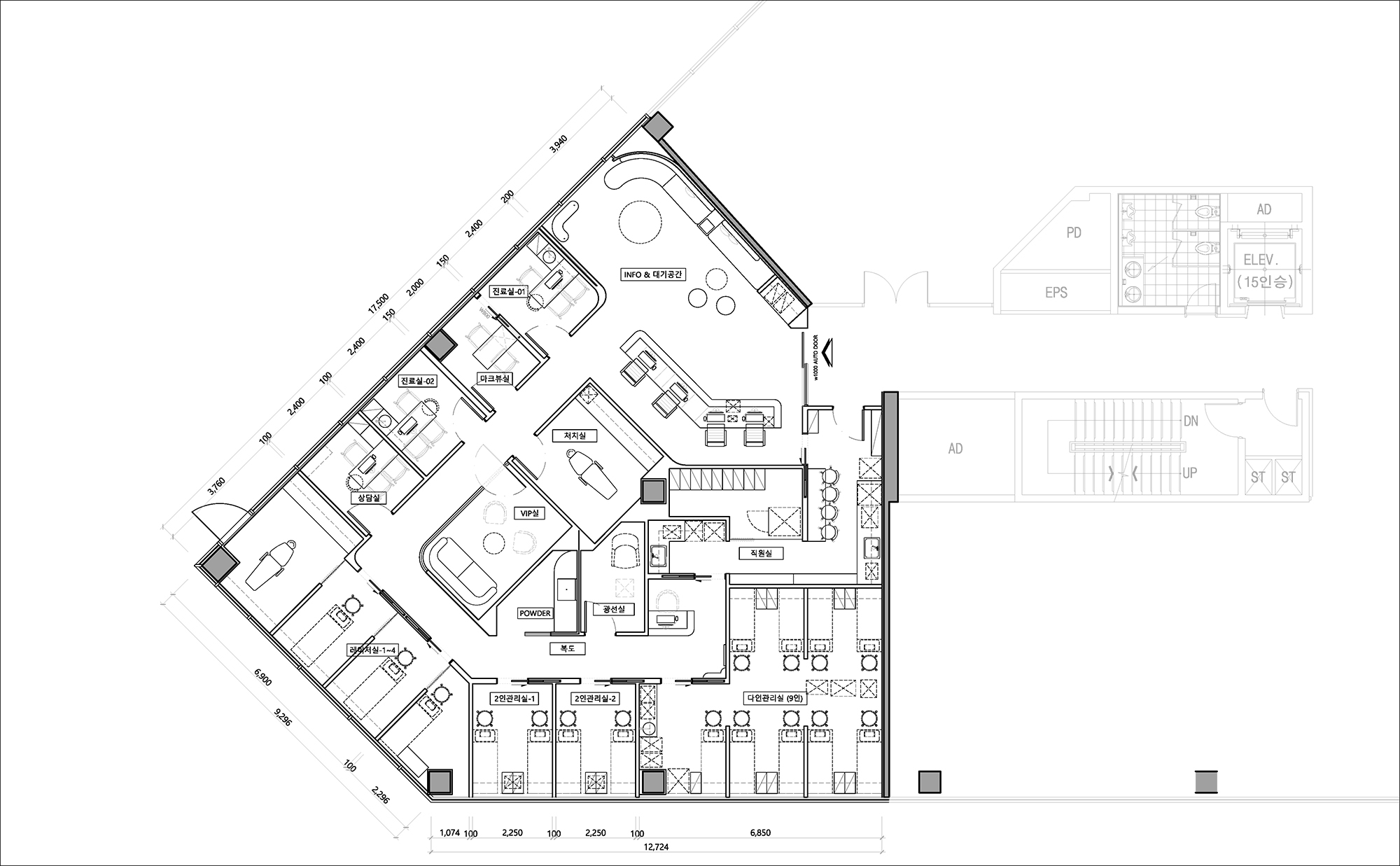
ⓒAVEC_ 김연진의 퓨린피부과의원 평면도 - Project Name : 서초 김연진의 퓨린피부과의원
- Location : 서울 서초구 잠원로24 반포자이프라자 4F
- Area : 170 m2
- PHOTO : HW studio
- DESIGN : AVEC (설계: 정별, 주이준 / 시공 : 류한경)
avec.or.kr
728x90'volume.26' 카테고리의 다른 글
발행인의 편지 (0) 2022.10.07 헌신과 나눔으로 환자에게 희망을 선물하다 (상) (1) 2022.10.07 과감한 투자보다 실력 있는 의사가 먼저! (하) (1) 2022.10.07 [유은정 원장의 심리처방] 내가 예민한 게 아니라, 네가 너무한 거야 (0) 2022.09.05 [인천가톨릭대학교 바이오헬스케어디자인과] 테크 기업의 서비스 디자인 (0) 2022.09.02 [이현주 병원 마케터가 바라본 짧고 얕은 문화이야기] 흰색 실을 엮어서 죽음과 삶의 연결고리를 만들다 (0) 2022.09.01 웨이하이 전통 한방병원 (0) 2022.09.01 [임진우 건축가의 '함께 떠나고 싶은 그곳'] 이탈리아 여행 1 - 남부에서 중부까지 (0) 2022.08.31