-
[INVITATION] 자연을 매개로 ‘정서적 교감’의 병원 경험이 제공되다!volume.57 2025. 3. 31. 23:21
자연을 매개로 ‘정서적 교감’의 병원 경험이 제공되다!
Dentista Amsterdam
154_LR-11A-Dentist_Amsterdam_waitingroom-reception-rooms-i29 내 집처럼 편안한 분위기에서 치료를 받을 수 있다면 얼마나 좋을까? 아마도 거의 모든 환자가 원하는 병원은 바로 이런 모습이 아닐까 한다. 이번에 소개될 치과 클리닉은 외관부터 오래된 목재가 균일하게 적용된 패턴으로 보는 순간, 편안함과 따스함이 저절로 느껴진다. 벽돌과 목재 자체에서 흐르는 코지한 정서는 심리적인 안정감과 내면의 깊은 평온함을 안겨주며, 치료를 넘어 온전한 치유를 경험하게 한다. 이번 프로젝트는 코지한 분위기를 바탕으로 의료 환경이 주는 깨끗함과 자연이 주는 치유 환경을 디자인으로 극대화한 것이 특징이다. 이로 인해 환자들에게 ‘정서적 교감’이 이루어지는 병원 경험을 선사했다.
글_ 박하나
디자인 및 제공_ i29
사진_ Thomas van Schaik
i29가 디자인한 암스테르담 중심부의 새로운 치과 병원은 편안한 녹색 분위기와 의료 전문성을 결합한 것이 특징이다. 특히 천연 목재와 풍부한 식물, 개방형 레이아웃 덕분에 환자들은 안정된 분위기 속에서 치과 치료를 받을 수 있다. i29는 Dentista 치과 체인점의 첫 번째 매장을 위해 건축 디자인과 브랜드 아이덴티티를 모두 담당했다. 특히 통일되고 명확한 톤을 만들어내기 위한 노력들을 곳곳에서 찾아볼 수 있다.
선명한 직선과 깨끗한 흰색은 실용적이고 직관적인 의료 전문성을 잘 나타낸다. 디자이너는 공간 전체의 직선을 통한 통일감을 주고 각각의 면마다 라인을 구체화시켰다. 각각의 면은 목재 프레임을 통해 단정하게 구획이 나누어지고, 복도를 통해 양옆으로 구분된다. 또한 깨끗한 흰색은 각각의 면들을 더욱 뚜렷하게 보여주면서 직선이 주는 쾌감을 더욱 극대화시켰다.

154_LR-23-Dentist_Amsterdam_treatment rooms-i29 
154_LR-24-Dentist_Amsterdam_treatment rooms-i29 
154_LR-18-Dentist_Amsterdam_treatment rooms receprtion-i29 
154_LR-12-Dentist_Amsterdam_waitingroom-reception-rooms-i29 
154_LR-15-Dentist_Amsterdam_waitingroom-reception-i29 
154_LR-13-Dentist_Amsterdam_waitingroom-reception-plants-i29 그중에서도 대기 공간과 치료실을 구분하는 디자인이 인상적이다. 짙은 카키(녹색) 컬러는 대기 중인 환자와도 완벽한 분리감을 이룬다. 대기 공간은 녹색으로 명확한 포인트를 주고, 한쪽 대기 공간은 목재로 한 면을 부각시켰다. 목재와 녹색의 컬러는 믹스매치되어 조화로운 분위기가 자연스럽게 형성된 것이 특징이다. 또한 선명한 각도의 녹색 구역과 접수 데스크는 흰색 컬러의 대기 공간과 치료실을 구분하고 있다. 녹색 구역에는 초록의 식물들로 구성되어 환자들에게 편안함과 안정감을 주고 있다. 이런 환경은 환자들에게 치료받기 전의 긴장감을 덜어주기에 충분한 요소로, 디자이너의 디테일함이 느껴진다.

154_LR-20-Dentist_Amsterdam_treatment rooms garden-i29 치료 구역의 중심부에는 안뜰 정원이 숨겨져 있다. 이곳은 치료실에서 자연과 일광을 볼 수 있는 전망을 제공한다. 하늘에서 내려오는 자연광은 중앙 정원과 전체 공간을 온화한 빛으로 물들인다. 특히 깨끗한 흰색의 내부 컬러는 중정의 식물 컬러들을 모두 흡수하며, 내부를 더욱 창의적으로 이끈다. 또한 우드 프레임으로 픽스된 큰 창은 중정을 사방에서 볼 수 있게 하여 힐링의 장소로 활용되고 있다. 이렇게 자연과 사람 모두에게 긍정적인 영향을 주는 환경은 환자치료에 적극적인 도움이 되고 있다.

154_LR-21-Dentist_Amsterdam_treatment rooms garden-i29 
154_LR-31-Dentist_Amsterdam_treatment rooms-i29 진료실의 치과 의자에 누워 큰 원형 천창으로 하늘을 바라볼 수 있다는 점도 무척 인상 깊다. 진료실은 전체 흰색 바탕에 한쪽 면이 녹색으로 포인트 있게 연출되어 시각적인 편안함과 즐거움마저 안겨준다.
최첨단 기기가 갖춰진 특별실에는 X-ray와 멸균실이 포함된 곳으로, 치과 치료에 중요한 부분이다. 이곳은 전체 흰색 컬러로 의료 환경의 질서를 온전히 유지하게 한 점이 돋보인다. 컬러의 특이성보다도 절제된 환경 디자인도 이번 프로젝트에서 눈여겨 볼 부분이다.




154_LR-41-Dentist_Amsterdam_staff room-i29 
154_LR-40-Dentist_Amsterdam_staff room-i29 직원들이 휴식하거나 식음할 수 있는 탕비실 역시 안락하게 디자인된 점을 알 수 있다. 중정을 바라볼 수 있는 곳에 배치된 탕비실은 녹색의 붙박이 소파와 원목 테이블을 배치했으며, 붙박이 소파의 경우 주방가구와 하나로 일체감을 이루게 했다.
이 프로젝트의 디자인 전략은 깨끗하고 신선한 의료 환경과 건강을 유도하는 웰니스 경험을 결합하여 환자들이 편안하고 안정감을 느낄 수 있도록 하는 것이었다. 그만큼 내 집처럼 편안한 병원 공간을 만드는 것은 환자의 회복과 치유에 많은 도움이 되고 있다고 볼 수 있다.

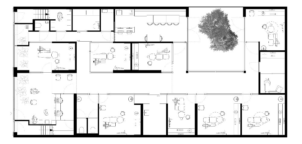
presentatie plattegrond 
154_LR-01-Dentist_Amsterdam_ceintuurbaan facade-i29 Dentista는 건강과 아름다움에 진지한 모든 사람을 위한 고급 치과 클리닉이 목표다. 8개의 치료실을 갖춘 이곳은 최신 기술로 완벽하게 정비되어 있으면서도 개인적인 서비스를 제공하고 있다. 특히 모든 치과 의사와 전문가들이 최고 품질의 진료를 제공할 수 있도록 협동조합 형태로 운영되어, 환자와 진료소 모두의 참여를 보장하고 있다.
728x90'volume.57' 카테고리의 다른 글
[Special Column] 마지막 삶까지 내면의 평화, 휴식, 위안을 안겨주는 호스피스 공간 Children’s Hospice House for Julia (0) 2025.04.01 [ISSUE] 산모와 아기가 ‘따스한 집에서 럭셔리한 편안함’을 추구하다! (3) 2025.04.01 [DESIGN TREND] LX하우시스의 2025 인테리어 디자인 트렌드 ‘시너지(SY(E)NERGY)’ (0) 2025.04.01 [편집장 FOCUS] (사)대한종합건강관리학회 제66회 학술대회 (0) 2025.03.31 [젊은 건축사의 Care-Full Space] 해외 사례로 내다본 ‘한국형’ 시니어 레지던스의 미래는 - 2부 (0) 2025.03.31 [BOOK 신간소개] 직장인들을 위한 집중력 수업 (0) 2025.03.31 [송창민 푸드애널리스트의 건강한 맛집] 봄이 선사하는 계절의 태동을 맞이하는 건강한 나를 위해 (0) 2025.03.31 [헬스케어트렌드] 인간 중심 디자인(HCD), 일상에 스며든 배려와 공감의 힘 (0) 2025.03.31