-
Dentista 암스테르담 치과volume.27 2022. 10. 7. 23:01

Dentista 암스테르담 치과
i29가 디자인한 암스테르담 중심의 새로운 치과는 의료 전문성과 함께 천연 나무, 풍부한 녹지 및 개방형 구조로 방문객이 편안함을 느끼도록 한다.
무엇보다 Dentista 치과 체인의 첫 번째 병원인 만큼 i29는 향후 다른 곳에도 적용 가능한 내부 구성과 시각적 브랜드 아이덴티티를 고려했으며, 그 결과 깨끗하고 차분함을 주는 흰색과 녹색을 사용하여 Dentista 치과의 메인이 되는 컬러 블록을 만들었다.
날카로운 선과 깨끗한 흰색은 의료 전문성을 실용적이고 직관적으로 나타내며, 중앙 정원과 지붕 조명은 전체 진료를 통해 자연 채광을 발산하여 식물과 사람 모두에게 영양을 제공한다.



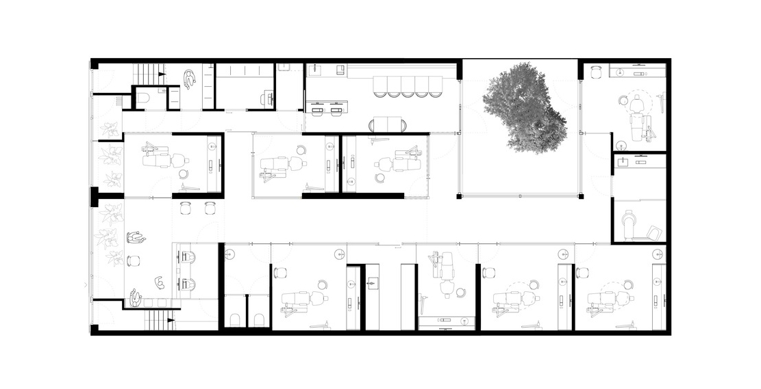
목재로 마감된 외관의 진료소에 들어서면 가장 먼저 의자 몇 개와 키가 큰 나무 상자 좌석이 있는 대기실이 나온다. 울창한 녹지가 외부의 번화한 거리와 대기공간을 분리하는 반면, 날카로운 각도의 녹지 구역과 안내데스크는 대기공간과 치료실을 분리한다.
특히 공간의 대부분은 직관적으로 의료 전문성을 드러내는 흰색으로 마감했지만, 안내데스크 주변은 가구에서 천장, 벽 및 바닥에 이르기까지 완전히 녹색으로 마감하였다. 흰색 복도는 진료소 뒤쪽으로 이어지며, 반투명 줄무늬가 있는 유리 칸막이벽이 치료실을 둘러싸고 있어 채광은 확보하되, 환자의 사생활을 보호할 수 있다. 목재로 마감된 외관의 진료소에 들어서면 가장 먼저 의자 몇 개와 키가 큰 나무 상자 좌석이 있는 대기실이 나온다. 공간의 대부분은 직관적으로 의료 전문성을 드러내는 흰색으로 마감했지만, 안내데스크 주변은 가구에서 천장, 벽 및 바닥에 이르기까지 완전히 녹색으로 마감하였다. 흰색 복도는 진료소 뒤쪽으로 이어지며, 뒤쪽의 특별실에는 엑스레이, 살균실 등 최첨단 기술이 갖춰져 있다. 최신 기술을 완벽하게 갖추고 있는 치료실은 고급 진료를 위해 개인용으로 계획했으며, 반투명 줄무늬가 있는 유리 칸막이벽이 둘러싸고 있어 채광은 확보하되, 환자의 사생활을 보호한다.







치료 구역의 중심부에 있는 야외 안뜰은 주변을 에워싼 8개의 치료실에 자연과 채광을 제공한다. 또한 녹색으로 칠한 간이 주방과 벤치가 있는 직원 휴식 공간에도 자연과 채광을 제공하며, 깨끗하고 신선한 의료 환경과 건강을 유도하는 웰빙 경험을 결합해 환자와 직원이 편안하게 느낄 수 있도록 하였다.



평면도 - 완공 : 2022
- 위치 : 네덜란드 암스테르담
- 면적 : 260m²
- 디자인 : i29 interior architects
- 사진 : Thomas van Schaik
728x90'volume.27' 카테고리의 다른 글
발행인의 편지 (0) 2022.11.09 사람에 집중된 치료 의술 펼치는 서울탑치과병원 (상) (1) 2022.11.09 출사표 던진 서울탑치과병원 (하) (0) 2022.11.09 [노태린의 헬스케어디자인 이야기] 치유를 위한 병원공간 디자인 (0) 2022.10.07 [이현주 병원 마케터가 바라본 짧고 얕은 문화이야기] 담뱃갑 은박지에 새긴 뜨겁고 애잔한 사랑의 기록 (0) 2022.10.06 [마태호 원장의 책 해방일지] 어떻게 죽을 것인가 (Being Mortal) (0) 2022.10.04 SKINLALA BEAUTY SPA FLAGSHIP STORE (0) 2022.10.04 [최경숙 간호부장의 노인병원 애상] 노인이 되기 전 공부 (0) 2022.10.04
