- 
                                            
                                            [박원배 건축가의 Special Column] On-Stage와 Off-Stagevolume.27 2022. 9. 28. 21:06


On-Stage (Public) / Off-Stage (Private) 일반적으로 대형 병원에서는 내부의 혼잡을 해소하기 위해 동선을 나누게 됩니다. 우리나라에서는 공용복도와 직원복도 등 ‘동선’ 개념으로 분류하는 편인데 반해, 미국에서는 ‘영역’ 개념으로 나누어 ‘on-Stage, off-stage’란 용어를 더 많이 사용합니다.
이런 표현의 어원은 이름에서 짐작되듯이 오래 전 극장 설계로부터 비롯된 것입니다. 객석으로 들어오는 청중과, 공연자들의 동선을 구분하기 위해 시작된 것이죠. 예를 들어 콜로세움을 지었는데, 토가(toga)를 걸치고 우아하게 입장하시는 귀족들과 창과 도끼를 든 노예 검투사들이 같은 통로를 이용하게 하면 곤란한 일이 발생하겠죠?
이러한 동선 또는 영역의 구분은 오늘날 많은 건물에서 볼 수 있습니다. 공연시설 외에도, 스타디움 같은 운동시설, 백화점이나 식당가를 비롯한 판매시설 등 일반인(고객)들의 영역과 내부직원 및 물류의 영역을 나뉘는 건물 종류는 무수히 많습니다.
그러면. 병원설계에 있어서 On-Stage와 Off-Stage를 구분하는 장점은 무엇일까요? 우선 외래환자 입장에선 직원들이나 물류, 환자복을 입은 입원환자들을 볼 필요가 없으니 환자경험이 개선됩니다. 의료진 입장에서도 내원객과의 접촉 없이 별도의 전용 동선으로 다니게 됨으로써 프라이버시가 개선되고 동선 효율이 증대됩니다.
그러면 국내외 사례들을 통해 병원 내 각 부서별로 On-Stage / Off-Stage 구분에 대해 알아보겠습니다.

일본 아시카가 적십자병원의 병동부 (니켄세케이 설계) 
미국 펜실베니아 대학병원 증축동의 병동부 (HDR설계) 우선 병동부의 경우는, 최근의 해외병원들의 경우는 On/Off-Stage 개념이 적용되는 사례가 점차 많아지고 있습니다. 맨 위는 아시카가적십자병원의 사례이고, 아래는 펜실베니아 대학병원의 증축동(New Pavilion)입니다. Off-Stage 영역에는 의료진 및 화물용 엘리베이터뿐만 아니라 입원환자용 엘리베이터도 포함됩니다.


병동부 On-Stage와 Off-Stage 구역의 분리 이러한 추세를 바탕으로 근래 저희 회사에서 제안 또는 진행하고 있는 프로젝트들에서는 위의 도면들과 같이 병동 내 분리된 Off-Stage 구역을 제안하고 있습니다. 특히 코로나 이후 팬데믹에 대응하기 위한 의료진 ‘전용’ 엘리베이터를 추가한 점이 이전 평면들에 비해 업그레이드된 내용입니다.
그런데 대개의 발주처는 의료진 전용 엘리베이터 설치는 수용하는 반면, 유감스럽게도 의료진 전용복도에 공간을 할애하는 건 무척 아까워하십니다. 결국엔 전용복도 대신 실로서 메꿔지는 경우가 많습니다.

콜롬비아 케네디병원(Hospital de Kennedy)의 중환자실 이번엔 중환자실에 적용된 On/Off-Stage 평면형식입니다. 위는 콜롬비아 보고타에 있는 케네디 병원(Kennedy Hospital)이란 공립병원입니다. 이곳의 중환자실은 특이하게도 방사형 평면을 채택하여 중앙의 간호스테이션(NS)에서 각 병상의 관찰이 용이하도록 설계되어 있습니다.
더욱 특이한 건 중환자실을 둘러싼 외주부 복도인데, 이 복도를 이용하여 오염물 동선을 분리할 뿐만 아니라 보호자들의 동선으로도 사용하고 있는 것입니다. 즉, 중앙의 의료진 Off-Stage 근무공간 내에선 오염물을 다루 일도 없고, 보호자들과 마주칠 일도 전혀 없습니다.

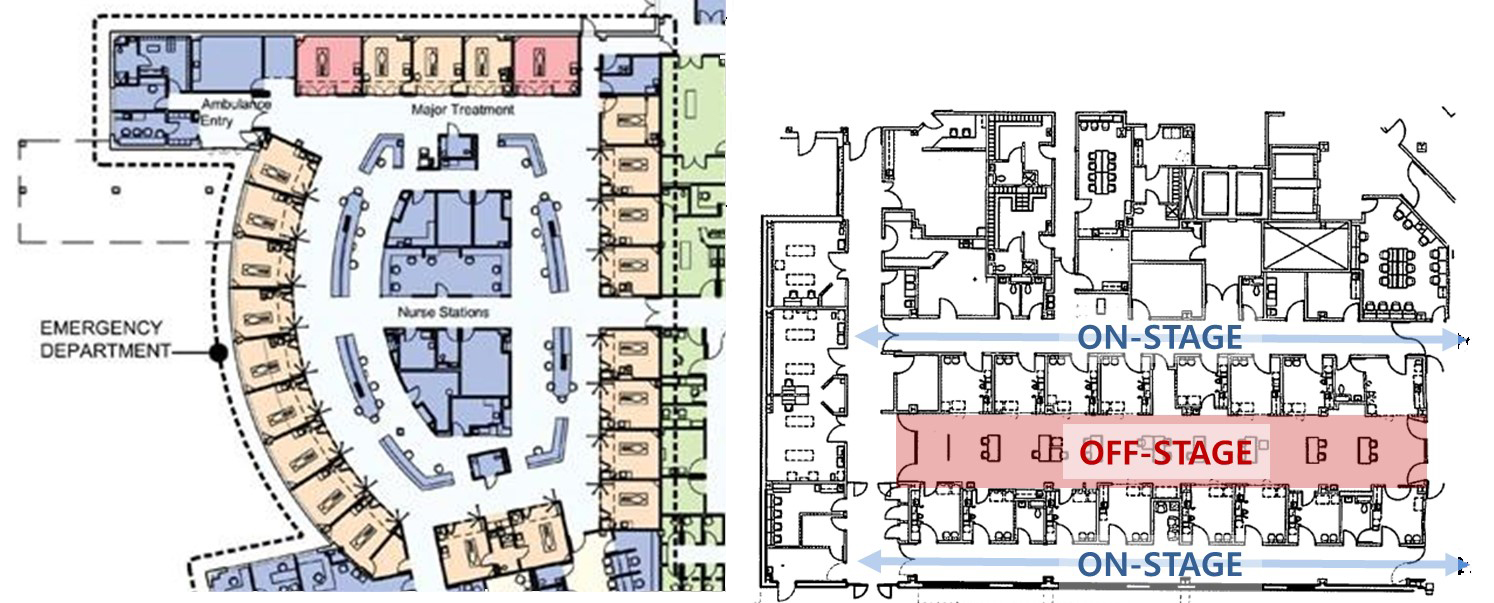
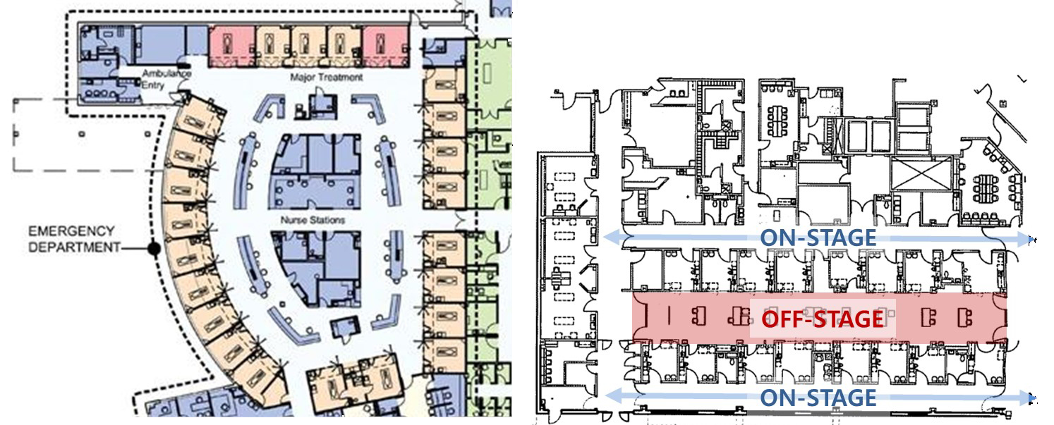
Ball Room 타입의 응급부 평면(좌)와 Linear 타입의 응급부 평면(우) 응급부 평면형식에서도 ‘Linear Type’이라고 해서 Off-Stage를 구분하는 방식이 있습니다. 위 그림 좌측은 일반적으로 익숙한 Ball Room 타입의 응급부로서, 각 병실 앞의 복도를 의료진과 보호자들이 공유하는 형태입니다.
반면에 우측은 Linear 타입이라고 불리는데, 의료진의 근무영역(Off-Stage)과 외부 보호자 동선이 따로 분리되어 있습니다. 의료진에 대한 폭력사고가 특히 빈번한 응급부의 경우 이러한 평면 타입의 적용도 고려할만한 하다고 생각합니다.

의료진 동선분리에 따른 모듈러 외래진료부 평면 타입 마지막으로 외래진료부를 살펴보겠습니다. 모듈러 형식의 외래진료부 평면은 위의 다이어그램과 같이 3가지 정도로 분류할 수 있습니다.
다이어그램 맨 좌측은 우리나라의 병원들에서 많이 적용되는 평면 형식으로서, 외래진료부는 특별히 환자 동선과 의료진 동선 구분 없이 평면을 구성하는 게 일반적이었습니다. 같은 면적에서 가장 많은 기능실들을 확보할 수 있기 때문입니다.

미국 MD Anderson Cancer Center의 Mays Clinic 외래진료부 진찰실 복도 우리나라의 모듈러 외래 평면시스템은 예전 미국 병원들에서 영향을 받은 바가 큰데, 가장 큰 차이점은 미국의 병원들은 우리가 소위 소대합이라고 부르는 진찰실 바로 앞의 대기공간이 없다는 점입니다. 우리나라와 미국은 진찰실당 1일 외래환자수에서 큰 차이가 나기 때문이죠.

일본 아시카가적십자병원 외래진료부의 의료진 전용복도와 진찰실 그런데 일본과 중국병원 등지에서는 예전부터 앞서의 두 번째 다이어그램과 같이 진료실 후면에 의료진용 복도를 설치하고 있습니다. 이를 통해 의료진의 프라이버시와 안전을 도모한 건대, 미국 쪽에서 이를 잘 받아들이지 않은 이유는 의료진 복도 쪽의 문이 설치되어 있는 게 환자들 입장에서는 프라이버시에 문제가 있다는 것이었습니다.

중앙대광명병원 외래진료부의 의료진 전용복도 우리나라에서는 예전 삼성서울병원에서 개원 당시 평면에 적용한 적이 있고, 현재는 서울아산병원과 최근의 중앙대광명병원의 일부 진찰실에 이러한 복도를 마련해놓고 있습니다.
이러한 의료진 전용복도는, 의료진 프라이버시뿐만 아니라 점차 병원 내 폭력사고와 같은 의료진 안전 문제가 점차 이슈화되는 상황에서 앞으로 그 설치 사례가 증가할 것으로 전망됩니다.

Off-Stage 공용작업공간 평면 사례 그런데 최근 미국병원에서는 위의 도면에서 보듯이 앞서 다이어그램의 세 번째 방식, 즉 진찰실 후면에 공용작업공간(off-stage work area)을 설치하는 사례가 많아지고 있습니다. 이는 단순히 의료진의 프라이버시나 안전 문제뿐만이 아니라, 상호 소통의 기회를 증진시키고자 하는 노력의 일환입니다.
예를 들어 의사가 진료가 끝나면 바로 자기 개인연구실로 들어가 버리는 기존 행태에서는 스승과 제자, 선배와 후배, 동료 의사들끼리 업무 중 소통하는 기회는 극히 드물 수밖에 없습니다. 선배 교수 연구실에 노크하고 들어가 “선배님, 여쭤볼 게 있는데요?” 하는 상황은 쉽게 상상이 가지 않습니다.
진짜 소통은 직원식당에서, 카페 앞 대기공간에서, 수술실 복도에서, 그리고 위 사례와 같은 외래 공용작업공간에서 더욱 왕성하게 일어납니다. “아, 최교수. 만난 김에 하나 물어볼 게 있는데…” 하는 식으로요.

Summit Healthcare Regional Medical Center (사진출처: Healthcare Design Magazine) 의료진들은 병원의 중요한 자산이자 내부고객입니다. 융복합, 중개의학, 다학제 같은 거창한 용어들을 부르짖기보다, 이러한 캐주얼한 만남과 대화의 기회를 실질적으로 증진시켜줄 수 있는 Off-Stage 공간개념을 적극적으로 도입해야 되지 않을까요?
글. 박원배 건축가
정림건축 / 한국의료복지건축학회 이사
728x90'volume.27' 카테고리의 다른 글
[노태린의 헬스케어디자인 이야기] 치유를 위한 병원공간 디자인 (0) 2022.10.07 [이현주 병원 마케터가 바라본 짧고 얕은 문화이야기] 담뱃갑 은박지에 새긴 뜨겁고 애잔한 사랑의 기록 (0) 2022.10.06 [마태호 원장의 책 해방일지] 어떻게 죽을 것인가 (Being Mortal) (0) 2022.10.04 SKINLALA BEAUTY SPA FLAGSHIP STORE (0) 2022.10.04 [최경숙 간호부장의 노인병원 애상] 노인이 되기 전 공부 (0) 2022.10.04 [이수경 원장의 행복을 주는 건강 코칭] 4차 산업혁명 시대, 가장 중요한 것? (0) 2022.10.04 [임진우 건축가의 '함께 떠나고 싶은 그곳'] 이탈리아 여행 2 - 중부에서 북부까지 (0) 2022.09.30 [인천가톨릭대학교 헬스케어디자인 전공] UX디자인 어워드의 헬스케어 분야 수상 사례 (0) 2022.09.28