-
통증 치료 아시아 최고 인정받은 고도일병원 (하)volume.29 2023. 1. 4. 16:31
통증 치료 아시아 최고 인정받은 고도일병원,
환자들과 직원들이 함께 즐겁고 좋은 종합병원 꿈꾸다!
고도일병원은 전체 유리 파사드와 직선으로 뻗은 구조가 고도일 병원장의 곧고 단단한 모습을 반영하는 듯 참 많이 닮아 있다. 전체 유리를 적용한 외관은 내부 중정을 둘러싸며 자연의 빛과 색채를 온전히 받아들이고 있다. 특히 저녁이 되면 전체 건물이 조명에 의해 은은하게 연출되며 고혹적인 분위기가 조성된다. 질서 있고 균형감 있는 건물은 간결한 선과 라인으로 강조된 내부의 움직임을 그대로 투영하고 있다. 특히 3층의 경우 일본 관동체신병원의 원웨이(one-way) 방식을 도입했다. 이는 환자가 진료실에서 진료받은 후 바로 앞 치료실에서 치료받고 한쪽 방향으로 나올 수 있는 시스템으로 동선이 굉장히 짧다. 이 역시 당시 획기적인 설계 방식으로 고도일병원이 처음 도입했으며, 많은 환자를 빠르고 안전하게 볼 수 있다는 장점을 가진다.
“3층은 치료와 진료를 한 라인에서 바로 끝낼 수 있는 원웨이(one-way) 방식을 적용했습니다. 별거 아닌 것 같지만 정말 빠르고 안전하게 나올 수 있습니다. 원웨이 방식은 효율성 있게 하루에 많은 환자를 치료할 수 있어 우리 병원은 이 설계 방식을 도입했습니다. 환자가 많은 병원일수록 일반적인 병원 구조로 설계했다면, 동선이 엉켜 굉장히 혼란스러울 수 있습니다. 당시 이와 같은 설계는 굉장히 획기적이었고 우리 병원이 처음 도입했다고 할 수 있습니다.” 그만큼 병원 설계 역시 고도일 병원장의 진료 철학이 고스란히 반영됐다고 볼 수 있다.
8층 중정 휴게실 경우 환자와 직원들이 가장 만족스러워한 공간으로 꼽힌다. 이곳은 날씨에 따라 천정이 열리고 닫히는 구조로, 날씨가 좋을 때는 천정을 열어 좋은 공기를 마시고 맑은 하늘을 바라볼 수 있다. 더욱이 전면이 창으로 이루어져 내부에서도 중정의 하늘을 바라볼 수 있으며, 곳곳에 설치작품을 설치해 야외 갤러리로도 손색없이 활용되고 있다.
고도일 병원장은 통증에 대해서 이미 아시아 최고가 된 만큼, 이제는 척추·통증·관절·재활 전문 종합병원을 계획 중이다. 특히 전체적인 재활병원 겸 암 통증을 비롯한 만성통증까지 다 치료할 수 있는 병원 건립의 꿈을 갖고 있다. “통증에 대해서는 아시아 최고가 됐습니다. 이제 척추·통증·관절·재활을 전문으로 하는 종합병원이 되면 환자들을 더 잘 치료할 수 있지 않을까 생각합니다. 우리 병원 환자는 대부분 노인분이시다 보니 여러 가지 합병증이나 당뇨, 고혈압 질병을 앓고 있습니다. 그래서 이 질병도 같이 봐주면서 재활 및 통증 치료, 운동까지 책임져 줄 수 있으면 좋을 것 같아서 그런 병원을 계획 중입니다.”
새로운 병원 건립도 이미 최고의 정점을 찍은 고도일 병원장이 이제는 환자들에게 좀 더 가까이 다가가고자 하는 마음에서 비롯된 것이다. “한 10년 동안은 열심히 일해서 병원을 더 크게 일으켜보는데 마음을 두었다면, 지금은 그런 것보다 건강에 집중해서 직원들과 환자들이 같이 즐겁고 좋은 병원을 만들고 싶습니다. 점점 꿈이 소박해지는 것 같습니다. 병원을 좀 더 넓게 확장해보고자 하는 것도 좀 더 편안한 환경에서 환자들과 더 가까워졌으면 하는 데 의미가 큽니다. 왜냐하면 저도 나이가 들다 보니 환자들과 같이 늙어 가는 것 같습니다.”
최고가 되기 위해 노력하는 것도 중요하지만, 최고가 된 이후의 삶이 그 어떤 것보다 중요하다는 사실을 몸소 보여준 고도일 병원장. 단 하루도 시간을 허투루 쓰지 않고 자신의 소신과 열정을 오로지 환자 치료에 매진하며, 치료의 기반과 기준을 세워온 그의 열정은 아직 끝나지 않았다. 아무것도 없는 불모지에서 새로운 영역을 구축한 개척자의 진정한 행복은 결국 성공 이후의 삶으로 결정될 것이다. 그만큼 고도일 병원장이 꿈꾸는 새로운 세상 역시 진정 행복할 것이라 믿어 의심치 않는다.

2층 대기공간 ⓒ고도일병원 
3층 ⓒ고도일병원 
4층 병동 ⓒ고도일병원 7. 고도일병원이 내세운 비전이 독보적입니다. ‘10년 내(2024) 아시아 최고 척추·통증·관절·재활 전문 종합병원이 되고, 20년 내(2034) 세계 최고 척추·통증·관절·재활 전문 종합병원이 된다.’ 현재 이러한 비전 설계가 어디까지 진행됐으며, 앞으로 어떻게 전개될 것인지 궁금합니다.
통증에 대해서는 이미 아시아 최고가 됐습니다. 이제는 전체 척추·통증·관절·재활 전문 종합병원을 계획 중에 있습니다. 왜냐하면 단과병원만으로는 한계가 있어 다 고칠 수 없습니다. 그래서 이쪽 계통의 종합병원이 되면 환자들을 더 잘 치료할 수 있지 않을까 생각합니다. 특히 우리 병원 환자는 대부분 노인분이시다 보니 여러 가지 합병증이나 당뇨, 고혈압 질병을 앓고 있습니다. 이에 이 질병도 같이 봐주면서 재활 및 통증 치료, 운동까지 책임져 줄 수 있으면 좋을 것 같아서 그런 병원을 꿈꾸고 있습니다. 현재 강남 땅값이 예전보다 3~4배 올랐습니다. 이곳이 아닌 조금 더 넓은 곳에서 크게 만들려고 준비 중입니다. 하나의 도시처럼 몇 만 평 부지의 병원 건립을 계획 중에 있습니다.
8. 고도일병원은 지상 9층, 지하 4층에 신경외과, 신경과, 정형외과, 마취통증의학과, 재활의학과, 영상의학과 등을 갖추고 있습니다. 전체 어떤 컨셉으로 디자인되었는지 소개해주세요.
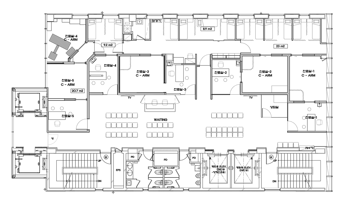
우리 병원은 미국과 일본, 호주에서 배워온 시스템을 합쳐서 운영되고 있습니다. 특히 설계는 일본 관동체신병원 시스템을 따랐습니다. 3층 한 라인에 진료실과 치료실을 마주 보게 했습니다. 진료실 앞에 바로 치료실이 바로 있는 방식입니다. 한쪽으로 길게 이어 붙여진 치료실은 각각 방에 배치되었고, 맞은편에 진료실이 바로 연이어 설계되어 있습니다. 환자가 진료실에서 진료받은 후 바로 앞 치료실에서 치료받고 한쪽 방향으로 나올 수 있는 시스템입니다. 그래서 동선이 굉장히 짧습니다. 치료와 진료를 한 라인에서 바로 끝낼 수 있는 원웨이(one-way) 방식입니다. 별거 아닌 것 같지만 정말 빠르고 안전하게 나올 수 있습니다. 원웨이 방식은 효율성 있게 하루에 많은 환자를 치료할 수 있어 우리 병원은 이 설계 방식을 도입했습니다. 환자가 많은 병원일수록 일반적인 병원 구조로 설계했다면, 동선이 엉켜 굉장히 혼란스러울 수 있습니다. 당시 이와 같은 설계는 굉장히 획기적이었고 우리 병원이 처음 도입했다고 할 수 있습니다.

3층 평면도 ⓒ고도일병원 9. 특별히 환자들을 위해 가장 많이 신경을 쓴 공간이나 디자인 포인트가 있다면 무엇인지 또 환자들이 가장 만족스러워한 공간은 어디인지 소개해주세요.
8층 중정 휴게실입니다. 이곳은 날씨에 따라 천정이 열리고 닫히는 구조입니다. 그래서 날씨가 좋을 때는 천정을 열어 좋은 공기를 마시고 맑은 하늘을 바라볼 수 있습니다. 특히 전면이 창으로 이루어져 내부에서도 중정의 하늘을 바라볼 수 있습니다. 또한 곳곳에 설치작품을 설치해 야외 갤러리로도 손색이 없습니다. 바닥은 원목의 데크를 깔았으며, 창 앞에 식물들을 빙 둘러 배치했습니다. 그래서 중정은 자연과 바람, 식물, 햇빛을 온전히 받으며 환자들과 직원들이 잠깐이나마 휴식과 힐링을 할 수 있도록 꾸몄습니다.

8층 중정 휴게실 ⓒ고도일병원 
9층 휴게실 ⓒ고도일병원 
9층 휴게실 겸 강당 ⓒ고도일병원 10. 척추 관절에 특화된 병원으로서 가장 중점을 둔 디자인이나 설계가 있다면 무엇인지 궁금합니다.
앞서 언급했듯 동선이 다르다는 점입니다. 나머지는 똑같다고 볼 수 있습니다. 3층 비수술 환자를 위한 원웨이 방식이 제일 자랑스럽습니다. 로봇 치료도 마찬가지입니다. 그다음에 도수치료도 우리는 분야로 나눠 전문성을 띠면서 진행하고 있습니다. 통증 있는 사람들은 호주식으로 근막을 마사지처럼 풀어주고 있습니다. 그다음에 카이로프랙틱 교정 도수치료가 있습니다. 또 회복되면 재발 방지를 위해 세계적인 척추 전문가 캐나다 스튜어트 맥길(Stuart Mcgill) 교수가 만든 운동치료가 있습니다. 그것을 합쳐서 진행하고 있습니다.
11. 병원 디자인에 앞서 참고하거나 염두에 둔 병원 및 공간이 있다면 어디인지 소개해주세요.
일본의 관동체신병원입니다. 이 병원은 대학병원보다 크다고 볼 수 있습니다. 익히 알다시피 관동체신병원은 국내 유명 통증의학과 의료진이라면 한 번씩 연수를 왔을 정도로 통증의학(신경차단술)의 선두 병원으로 정평이 나 있는 병원입니다. 그곳의 설계 방식을 우리 병원에 그대로 도입함으로써 타 병원의 많은 본보기가 됐다고 볼 수 있습니다.
12. 척추 관절 전문 병원을 계획 중인 의사들에게 병원 공간 설계에 있어 병원장님께서 조언하고 싶은 이야기가 있다면 무엇인가요.
저는 벌써 20년이 됐지만, 현재 척추 전문병원이 많이 생겨났습니다. 예전에는 초반에 저 혼자 병원이 잘되다 보니 질투를 많이 받았습니다. 대학교수들 역시 굉장히 부정적이었습니다. 그러다 10년 전부터는 대학에서도 다 비수술 치료를 하고 있습니다. 그래서 제가 대학에서 하는 신경통증학회 회장을 맡기도 했습니다. 재작년까지 회장으로 활동했습니다. 통증에 대해서 워낙 비수술에 관심이 높다 보니 대학에서도 안 할 수가 없는 것이죠. 지금은 저는 주로 봉사하는 위주로 나가고 있습니다. 그래서 이제는 더 잘 나가야겠다는 마음보다 ‘베풀자’라는 생각으로 후배들에게 많이 가르쳐주고 있습니다.
13. 병원장님께서 앞서 말씀하셨듯 병원 확장을 준비 중이신데, 현재 어떤 부분을 계획하고 계신지 궁금합니다.
저는 한 층에서 좀 더 넓게 사용하고 싶습니다. 지금의 병원이 의료 쪽으로 좀 편한 시스템과 디자인에 치중을 두었다면, 이제는 환자들의 휴식 공간을 위한 갤러리로 꾸미고 싶습니다. 환자들이 넓은 곳에서 진료를 기다리는 동안, 힐링 스페이스인 갤러리 공간에서 작품을 감상하며 시간을 보내는 것이죠. 지금 우리 병원도 층마다 미술 작품들을 배치했는데, 앞으로 신인 작가들도 소개하고 싶습니다. 그만큼 어려운 신인 작가들이 많기에 그들의 좋은 작품들을 소개하면서 도움을 주었으면 하는 마음입니다.

고도일병원 고도일 병원장 14. 마지막으로 고도일병원의 앞으로 목표와 비전은 무엇인지 한 말씀 부탁드립니다.
한 10년 동안은 열심히 해서 병원을 더 크게 일으켜보는데 마음을 두었다면, 지금은 그런 것보다 건강에 집중해서 환자들과 직원들이 같이 즐겁고 좋은 병원을 만들고 싶습니다. 점점 꿈이 소박해지는 것 같습니다. 병원을 좀 더 넓게 확장해보고자 하는 것도 좀 더 편안한 환경에서 환자들과 더 가까워졌으면 하는 데 의미가 큽니다. 여기서 돈을 더 버는 게 목적이 아닙니다. 왜냐하면 저도 나이가 들다 보니 환자들과 같이 늙어 가는 것 같습니다. 그래서 환자들과 편안하게 함께 갔으면 합니다. 예전에는 10년 뒤의 계획도 있었습니다. 이미 최고는 되었기에 그런 것보다 좀 편안한 병원이 되었으면 하는 것이죠. 지금도 병원 발레파킹 경우, 우리가 해주고 있습니다. 주차장도 병원 옆에다 하나 더 지었습니다. 그래서 아쉬운 점은, 한 층이 넓으면 환자들이 주사를 맞고 운동을 같이하는 동안 한 번에 끝날 수 있을 텐데 공간이 좁아서 할 수가 없다는 것입니다. 저는 그런 게 중요하다고 봅니다. 지금 우리 병원 엘리베이터도 4대를 설치했지만, 또 빨리 가지 못합니다. 왜냐하면 환자들이 다칠 수가 있기 때문에 천천히 갈 수밖에 없는 것이죠. 너무 느려서 환자들이 진료받으러 오는 데 한참 걸립니다. 그래서 한 천 평 정도의 규모를 한 층에 다 넣고 싶습니다. 그만큼 지금은 환자들을 위한 길이 어떤 것인지에 대해서만 생각하고 있습니다.
인터뷰이. 고도일병원 고도일 병원장
글. 헤렌 박
728x90'volume.29' 카테고리의 다른 글
발행인의 글 (0) 2023.01.04 국내 비수술 척추 치료의 기반 세운 고도일 병원장 (상) (0) 2023.01.04 GIANT Floor Exhibition Hall (0) 2022.12.05 [인천가톨릭대학교 디자인콘텐츠학과] 노인을 위한 도시를 디자인하다. (0) 2022.12.05 [임진우 건축가의 '함께 떠나고 싶은 그곳'] 순천만 갈대밭과 소록도 (0) 2022.12.05 유니크굿 컴퍼니 리얼월드 성수 (0) 2022.12.02 [최경숙 간호부장의 노인병원 애상] 축구는 인생이다 (0) 2022.12.02 [이현주 병원 마케터가 바라본 짧고 얕은 문화이야기] 왕가위 감독의 영화 ‘화양연화’, ‘2046’를 떠올리며 (0) 2022.12.02
