-
[Special Column] 미래지향적 병원이라구? / 박원배volume.23 2022. 5. 30. 20:55

과거 사람들이 예상했던 미래의 모습 ‘미래지향적’. 병원건축에 있어서 이 단어처럼 지겹게 들어보는 클리셰는 없을 것입니다. 이는 늘 반복되어 강조할 정도로 중요하지만, 역설적으로 제대로 반영하기 힘들다는 뜻이기도 합니다. 위의 그림에서 보듯이, 우리 인간은 미래에 대해서 예상하는 데에는 늘 젬병임을 입증해왔습니다. 그래서 병원건축에 있어서도 ‘미래지향적’이기 위해 무던히 노력해왔지만, 결국은 병원은 어디에선가는 증축과 리모델링 공사가 끊임없이 일어나고 있습니다.
물론 이는 설계자만의 잘못이 아닙니다. 가장 큰 이유는 병원의 프로그램이 계속 바뀌기 때문입니다. “프로그램이란, 낡은 데이터와 곧 구식이 될 기술을 근간으로, 지금은 없는 전임자들에 의해 만들어진 기획의 결과물”이란 우스갯소리가 있습니다. 사회적 요소나 기술 등 의료환경이 계속 변화하는 한 병원은 계속 변화할 수밖에 없습니다.
이에 따라 병원건축의 포커스도 달라지게 되었습니다. 예전에는 지침서의 프로그램대로만 충실하게 수행하는게 목표였다면, 오늘날의 병원설계에서는 미래에 대응하는 ‘변하기 쉬운 건물’로 설계하는게 더 큰 미덕이 된 것이죠. 만약 제가 1990년대로 되돌아간다면, 앞으로 설명할 1990년대 이후 병원시설의 중요한 변화를 얼마만큼 예견할 수 있었을까요?
우선 당시의 병실은 대부분 화장실 없는 6인실이었다가, 1990년대 초 병실 내 화장실이 설치되면서 5인실제로 변하기 시작하였습니다. 많은 사람들이 이러한 5인실은 당시 일본병원들이 기본적으로 채택하던 4인실 체제로 가기 위한 과도기이고, 조만간 일본처럼 4인실 체제로 갈 것이라고 예견했습니다.
그러나 우리나라에서 4인실은 사스, 메르스를 거치고 나서야 2017년 의료법 개정으로 실현되었습니다. 이때 의료법 개정은 병실의 깊이에도 영향을 주었는데, 병상간 이격거리가 최소 1.5m 이상으로 규정됨에 따라 병동의 세로축 모듈도 늘어나는 계기가 되었습니다.
예전 병원 로비 내에는 커다란 대기홀이 3개 정도 있었습니다. 입원원무과, 외래원무과, 그리고 외래약국대기가 그것이죠. 그런데 2000년 의약분업이 시행됨에 따라 외래약국 기능은 극도로 축소되었습니다. 외래원무 기능은 각 진료과로 분산화되며 대폭 축소되었고, 입원원무 기능 역시 키오스크 수납이나 병동수납 기능의 도입으로 카운터 상담기능은 대체로 축소되었습니다.
의무기록과도 큰 변화를 겪었습니다. 예전 병원에서는 원무과 뒤편에 차트장들이 빼곡한 어마어마한 면적의 의무기록과가 설치되어 있었습니다. 영상의학과 역시 대규모 필름 보관창고를 운영하고 있었고요. 그러나 2000년대 전자의무기록(EMR)과 PACS 시스템의 도입과 더불어 이들 공간은 이제 사라지고 없습니다.
물류 반송시스템 역시 큰 변화를 겪었습니다. 일반적인 화물 엘리베이터와 덤웨이터에 추가하여 기송관, 자주대차(ETV), 수직수평 컨베이어 등 자동물류시스템이 도입되기 시작하였습니다. 이에 더 나아가 현재 계획 중인 병원들에서는 AGV(automated guided vehicle)를 비롯한 첨단 로봇시스템의 도입이 검토되고 있습니다.
그 외에도, 모듈러 형식의 외래나 청결홀분리형의 수술부처럼 병원의 평면 전반에 영향을 주는 운영방식들이 소개되었고, 층고의 증가와 더불어 설비 및 공용공간 증가 등 면적비율에 변화를 주는 요인들이 많이 발생하였습니다. 꼭 병원에만 국한되는 건 아니지만, 지하주차장 역시 확장형 주차구획이 적용되면서 예전보다 넓은 모듈이 필요하게 되었습니다.
이처럼 병원의 시스템은 과거에도 변화무쌍했고 앞으로도 그럴진대, 우리 건축가들은 이에 대응을 과연 제대로 하고 있는 것일까요? 병원 건물의 수명은, 각 부의 기능에 따라 차이가 나지만, 대략 40~60년이라고 합니다. 간단히 말해서, 우리가 설계하는 건물은 한 50년 정도는 버텨줘야 한다는 뜻입니다. 그런데… 우리는 혹시 한 30년쯤 지나서 후회할 만한 건물을 설계하고 있는 건 아닐까요?
이러한 사례로서, 저희가 얼마 전 설계를 끝낸 원주세브란스기독병원 새병원을 예로 들어보겠습니다. 설계를 진행하다 보니, 기존 건물들의 낮은 층고가 문제가 되었습니다. 기존 층고를 새병원에도 계속 적용한다면, 지금 당장도 문제지만 미래의 기능들을 수용하기에는 적합치않다는 판단이 내려졌습니다. 그래서 기존 건물의 3개층 층고를 새 건물에서는 2개층으로 나누어, 당장은 다소 불편하지만 향후 새 건물이 들어설 때에는 우리 건물의 높은 층고가 적용될 수 있도록 하였습니다.
한편, 최근 사내에 새로운 대형병원 프로젝트들이 사전용역이나 실제 프로젝트로서 많이 진행되고 있습니다. 이들 모두 4, 5년 내에는 준공될 차세대 미래형 병원들입니다. 그런데, 과연 이들 병원의 기본 모듈이 이제까지의 병원들을 계속 답습해야 하는지 의구심이 생깁니다.
이를 테면 병실의 기본모듈로서 6.6m 모듈은 1990년대 초반부터 이미 30년 가까이 사용되어 왔습니다. 물론 모듈의 증가는 시설면적의 증가, 공사비의 증가로 이어집니다. 하지만 모듈의 결정에는 병실의 크기뿐만 아니라, 하부 기능들까지 고려해야 할 사항이 많은데, 이들 대부분 기능요소들이 점차 큰 모듈을 요구하고 상황입니다.
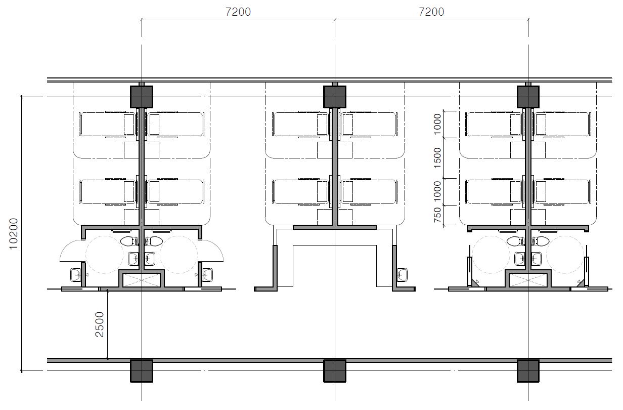
작년에 있었던 모 병원 현상설계 때 몇몇 설계사들은 미래병원의 모듈로서, 7.2m나 8.4m 등 새로운 병동모듈을 제안한 바 있습니다. 이처럼 미래 병원을 위한 새로운 병동모듈에 대해 숙고해야 할 시점에 이르렀다고 생각합니다. 하지만 선진국의 사례를 보면 이미 오래 전부터 대부분 8~11m 사이의 모듈을 채택하고 있는 현실이라 어쩌면 뒤늦은 감도 있습니다.
병실 모듈의 장기적 변화요인 중 하나로서, 1인실의 비중이 점차 커질 것으로 예상되고 있습니다. 생활수준 향상과 프라이버시 문제도 있지만, 특히나 코로나 이후 강화될 감염관리 대책에 따라 1인실의 비중을 늘리고자 하는 병원의 요구는 더더욱 탄력을 받을 것으로 예상됩니다.

7.2m 모듈의 4인실 레이아웃 예 그런 측면에서, 2인실은 여전히 계륵입니다. 2인실은 기본적으로 프라이버시면에서는 4인실과 동일합니다. 즉 없습니다. 또한 외국의 연구사례를 보면 2인실은 환자 만족도에 있어서도 4인실보다 떨어진다고 합니다. 우리나라의 상황도 거의 비슷한데, 4인실에 비해 2인실에서 옆 환자에 대한 컴플레인이 훨씬 더 많다고 들었습니다.
게다가 설계자 입장에서는 2인실은 병실 폭이 1인실이나 4인실과의 호환성이 없다는 게 가장 큰 장애입니다. 2인실은 안쪽 침대가 빠져나오기 위해서는 현재의 1인실이나 4인실과는 전혀 다른 모듈이 필요하기 때문입니다. 그럼에도 불구하고, 우리나라에서는 건강보험 수가가 일부 적용되기 때문에 2인실에 대한 수요가 여전히 존재합니다.
그래서 미래의 의료추세와 건축모듈 양쪽을 볼 때, 과연 2인실을 어느 정도 적용해야 할지는 참으로 어려운 문제입니다. 현재 병동단위와 모듈을 결정함에 있어 향후 1인실 비율의 증가는 물론, 궁극적으로는 전 병상 1인실제까지도 내다봐야 하기 때문입니다. (이 또한 최근 일본병원들의 추세이기도 하고요.) 현재의 수요만 가지고 병동단위와 모듈을 정했을 때 2~30년쯤 뒤에 후회할 일이 생기지 않을지 우려됩니다.
최근 수년간의 코로나 사태는 사회 전반에 걸쳐 근본적인 변화를 일으켰습니다. 하지만 우리나라의 병원건축은 아직도 2017년 의료법 개정에 따른 연장선상에 있다고 봅니다. 진짜 변화는 지금부터입니다. 과연 누가 더 먼저, 더 멀리 보고 변화를 리드해 나갈까요?
글. 박원배 (정림건축 / 한국의료복지건축학회 이사)
728x90'volume.23' 카테고리의 다른 글
경험의 깊이로 병원의 완성도를 높이다 / 울산병원 (하) (0) 2022.07.02 [노태린의 헬스케어 이야기] 비대면이 바꾼 집의 풍경 (0) 2022.06.03 드넓은 밀밭에 세워진 마을의 랜드마크 (0) 2022.06.01 [최경숙 간호부장의 노인병원 애상] 최선을 다하라고? (0) 2022.06.01 [이현주 병원 마케터의 짧고 얕은 문화이야기] 디지털 아트를 넘어선 NFT ART를 바라보며 (0) 2022.06.01 hug x UMA WANG New Concept Store (0) 2022.06.01 [임진우 건축가의 '함께 떠나고 싶은 그곳'] 우즈베키스탄의 유적지, 사마르칸트(Samarkand)와 히바(Khiva) (0) 2022.05.30 [이수경 원장의 행복을 주는 건강 코칭] 잠, 잘 주무십니까? (0) 2022.05.30