-
대구 시지 치매안심병원volume.34 2023. 5. 3. 16:24
추억과 향수 공간이 만든
합리적인 치매병동 디자인
추억과 향수 공간 어르신들의 과거 기억을 기반으로 한 테마와 스토리가 있는 디자인을 메인으로 설정한 리모델링 프로젝트입니다. 디자인 계획에 앞서, 요양병원 근무자 12명과 함께 코크리에이션 워크샵을 진행하여 공간의 문제점 및 개선 요소 등 사용자 니즈를 파악하고, 근건기반디자인 및 사용자중심 서비스디자인 프로세스를 활용하여 개발 방향을 함께 모색하는 과정을 가졌습니다.
더불어 노인분들을 위해 규칙적이고 인지가 쉬운 형태의 디자인인 웨이파인딩 디자인을 적극 활용했습니다. 공용공간에는 치료 및 수용기관으로서 안전성과 환경적 통제성 중심이 아닌, 임상실험을 통한 신경건축학적 공간 적용에 대한 입증(POE)이 이뤄진 친화적 요양측면에서의 생활환경에 대한 고려를 강화한 요소들을 적용하여. 환자와 보호자 맞춤형 공간이 되도록 편의성을 고려하고, 인지기능 향상을 위한 오감에 자연스럽게 노출될 수 있는 공간을 제안했습니다.

△ 내부 마감재 디자인 

△ 병동과 휴게공간을 바라볼 수 있는 위치로 사방이 열린 간호사 스테이션 




△ 추억 회상 테마공간 치매 환자 대상 회상 요법 실험 연구인 '자서전적 기억 연구 RT'에 따르면 RT는 기억을 불러 일으키고 대화를 자극하기 위해 사진이나 음악과 같은 유형의 프롬프트를 사용하여 다른 사람들과의 기억 및 과거 경험에 대한 토론을 유도하여 치매의 속도를 늦추도록 하는데 효과가 있습니다. 인지와 의사소통, 환자의 기분 영역 등에 매우 긍정적인 영향을 주고, 커뮤니티 (집단및 그룹)에서 소통 개선의 가능성이 있습니다.
이에 코크리에이션 워크숍을 통해 치매환자의 불편점 발견과 개선방향 모색, 공간에 새롭게 바라는 점 발굴, 공간 설계에 특별히 중점을 두어야 할 부분을 확인하고, 과거 방문했던 장소, 기억에 남는 곳, 고향 등 과거의 기억을 기반으로 하여 추억 회상 테마공간 디자인 방향을 잡았습니다.
상점 이미지, 간이역사 이미지, 평범한 단독주택 이미지 등 전체적으로 70-80년대의 모습을 반영하여 당시의 추억과 향수를 이미지화 할 수 있는 포인트 공간을 만들고, 특히 해당 공간을 배회의 공간과 만남의 공간에 구성하여 안락함을 주고, 소통의 공간이 되는 합리적인 치매병동 디자인을 적용하였습니다.

△ 추억 회상 테마공간 컨셉 
△ 어르신들의 향수를 느낄 수 있는 배회공간으로서의 중정 

△ 60/70년대 젊고 아름다웠던 그 시절 느낌의 배회공간 
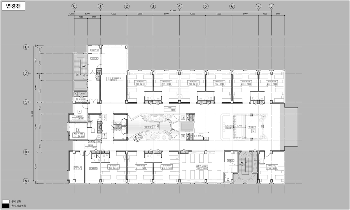
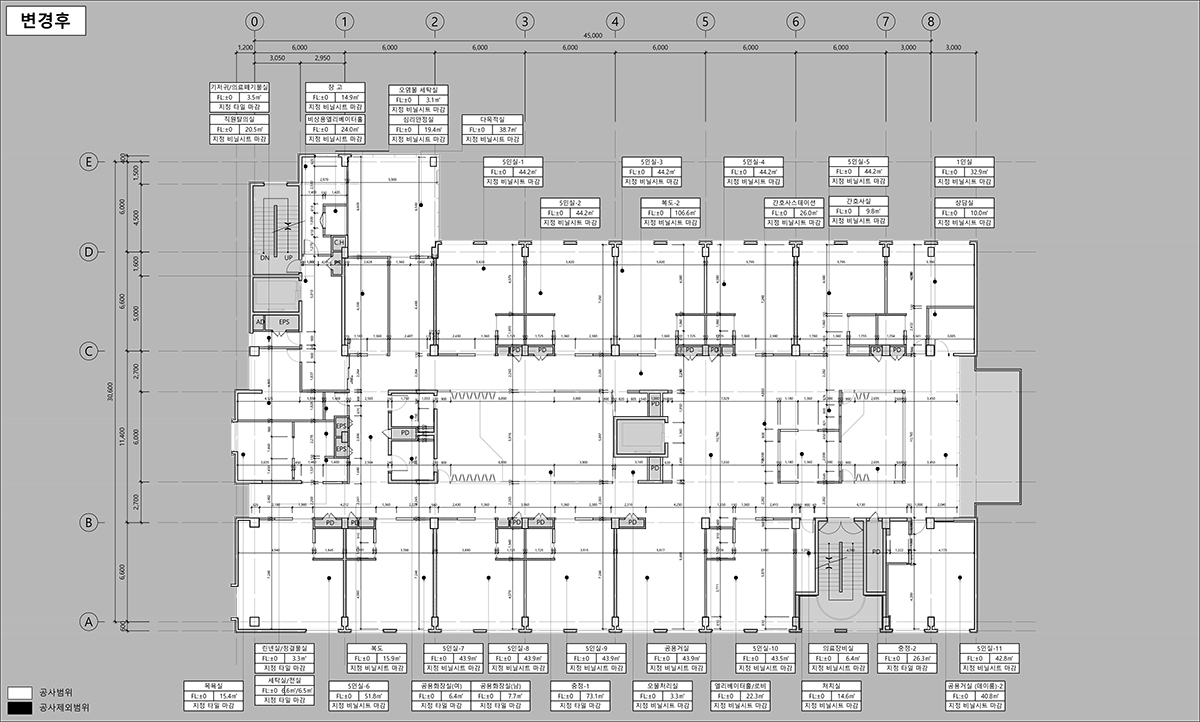
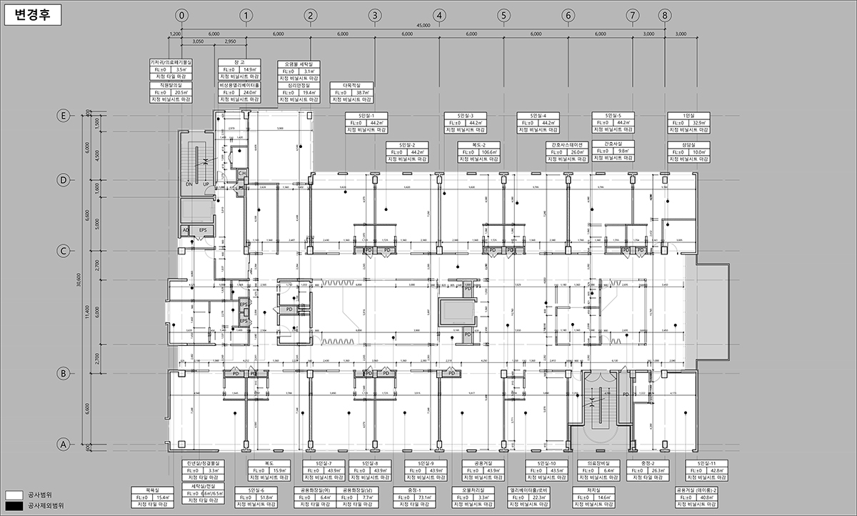
2층 치매병동 평면 변경 전 / 후


- Location : 대구광역시 수성구 유니버시아드로 365
- Area : 1,236㎡ (373.8평)
- Design : 노태린앤어소시에이츠
noh-and.co.kr
728x90'volume.34' 카테고리의 다른 글
날개 달고 지속 성장하는 날개병원 (상) (0) 2024.02.22 빅토리아 심장 병원 (0) 2023.05.03 [마태호 원장의 책 해방일지] 현실, 그 가슴 뛰는 마법 (0) 2023.05.03 [Special Column] 인지와 심리를 고려한 신경건축학적 접근의 치매전문병동 (0) 2023.05.02 발행인의 글 (0) 2023.05.02 [양재혁 실장의 디지털 헬스케어] ‘디지털치료제’ 아니에요 ‘디지털치료기기’ (0) 2023.05.02 [이현주 병원 마케터가 바라본 짧고 얕은 문화이야기] 시대를 앞선 한국 최초의 여성 서양화가 나혜석을 아시나요? (0) 2023.05.02 [최경숙 간호부장의 노인병원 애상] 노인되기 공부 (0) 2023.05.02