-
영국 자이드 어린이 난치병 연구센터volume.08 2021. 2. 26. 14:29
- 위치 : 런던, 영국
- 설계 : Stanton Williams
- 연면적 : 13,000㎡

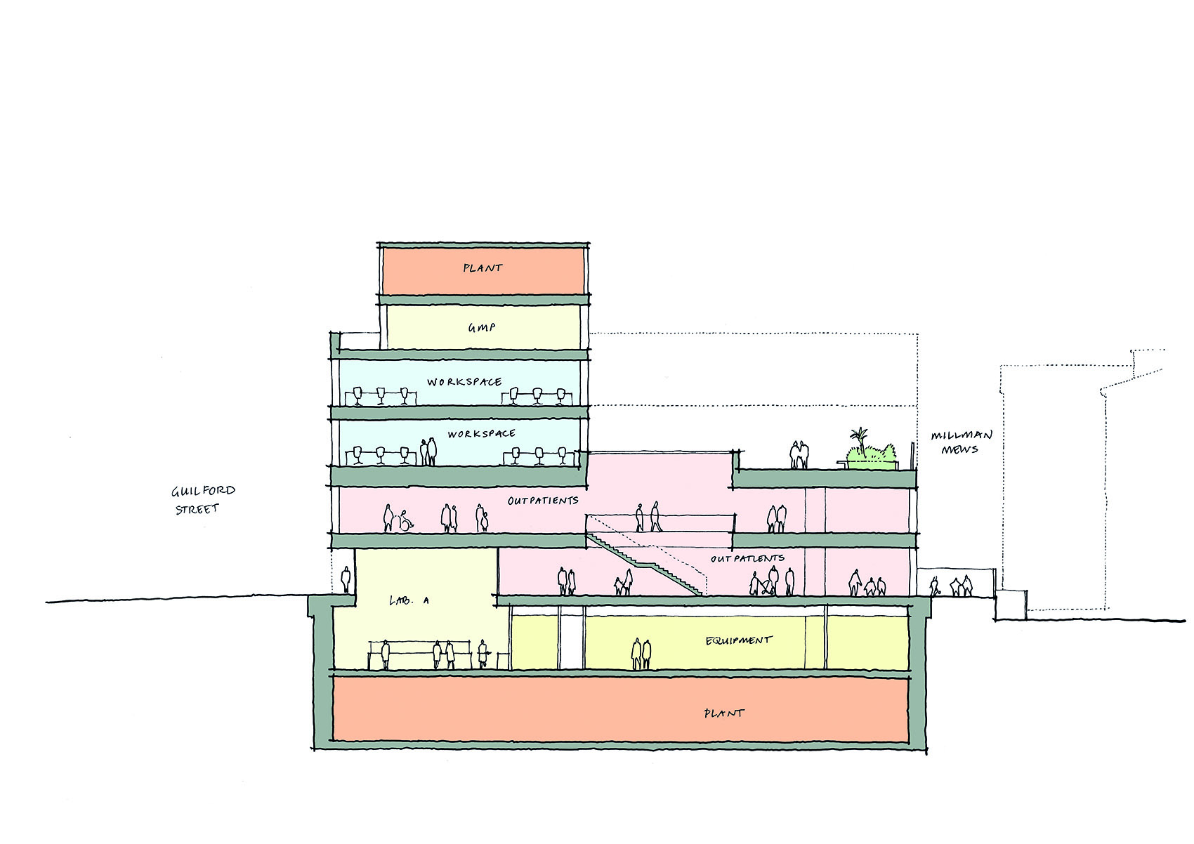
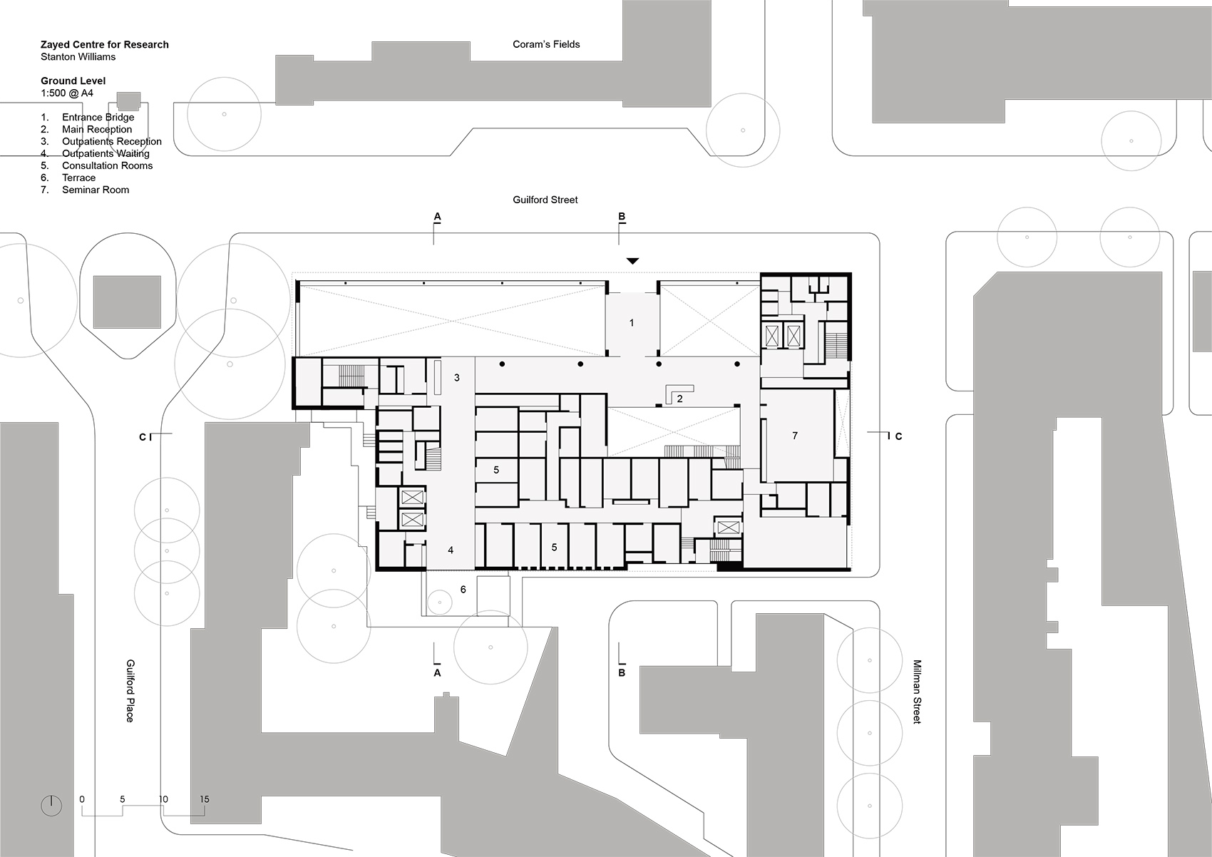
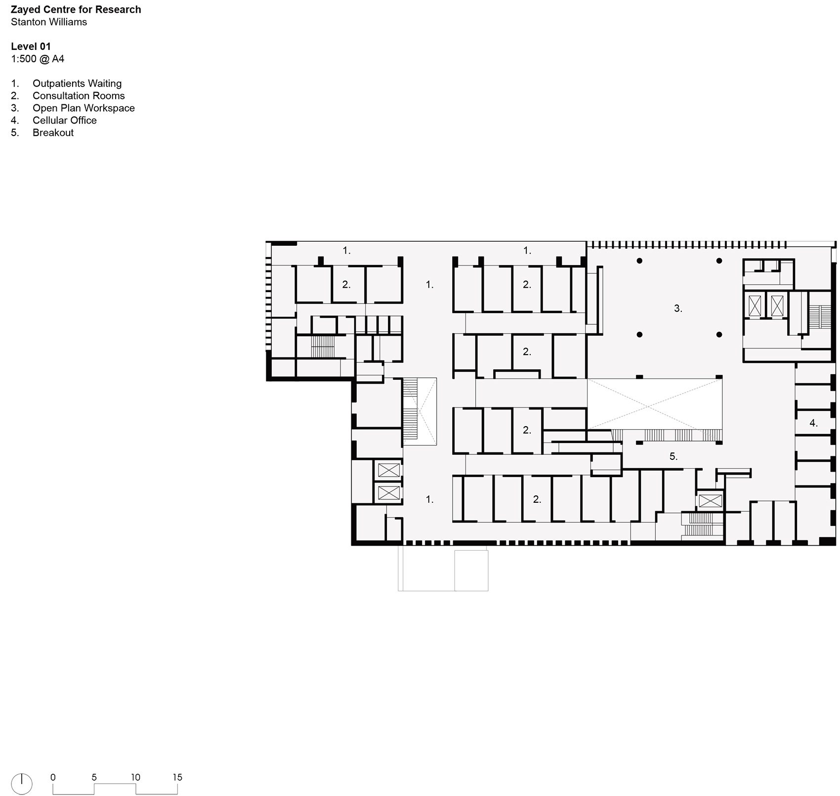
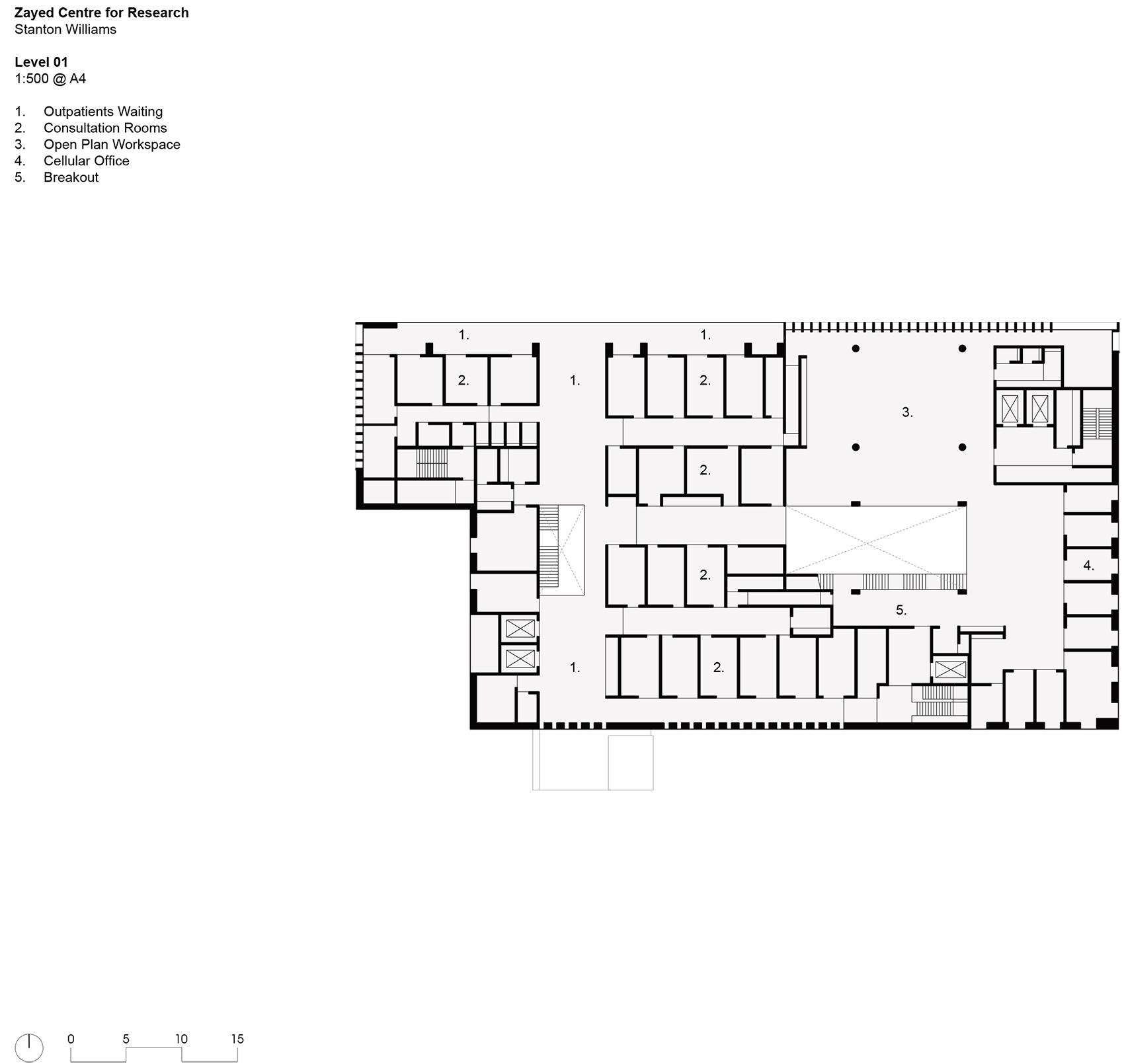
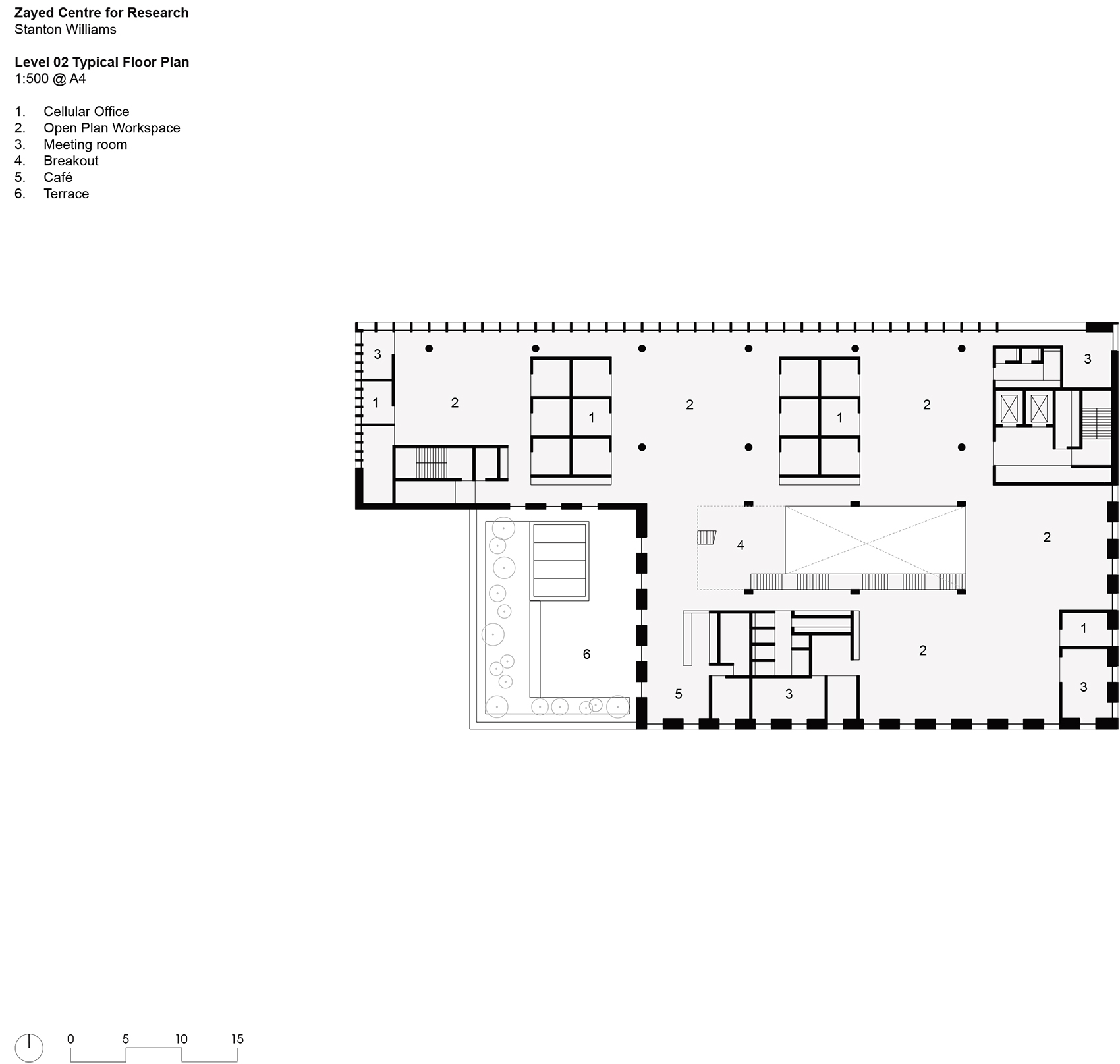
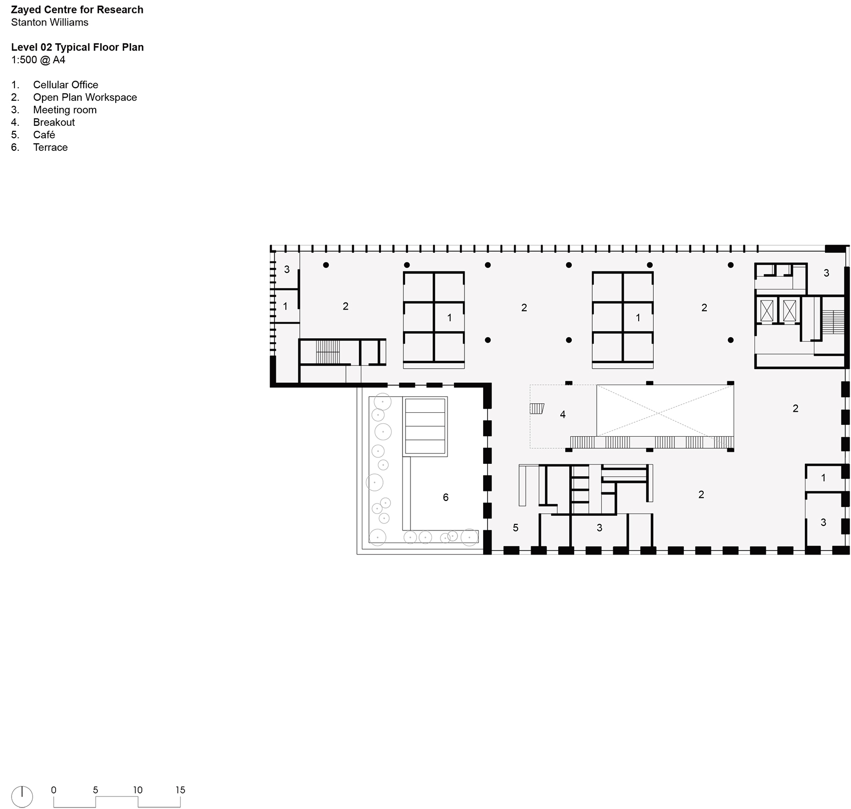
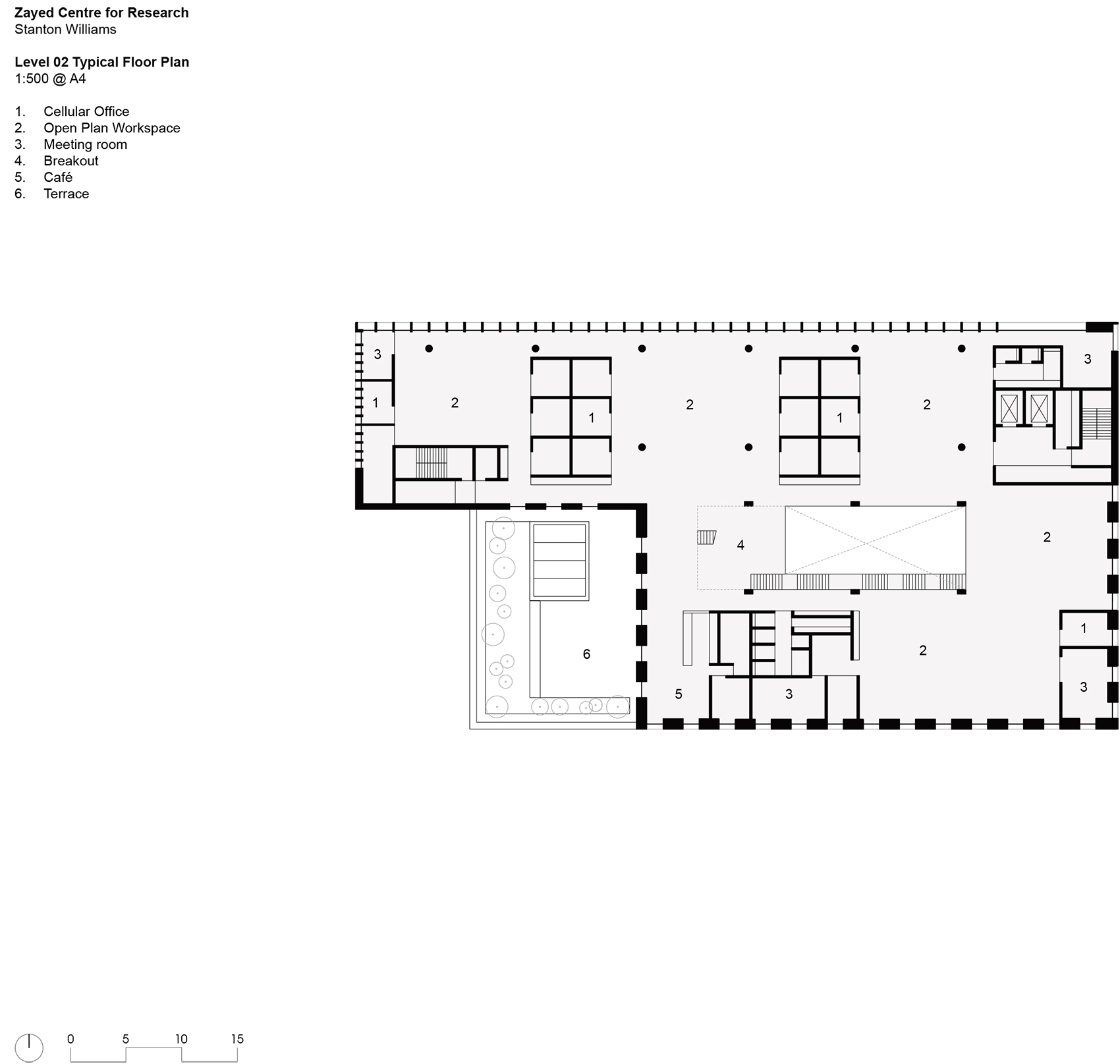
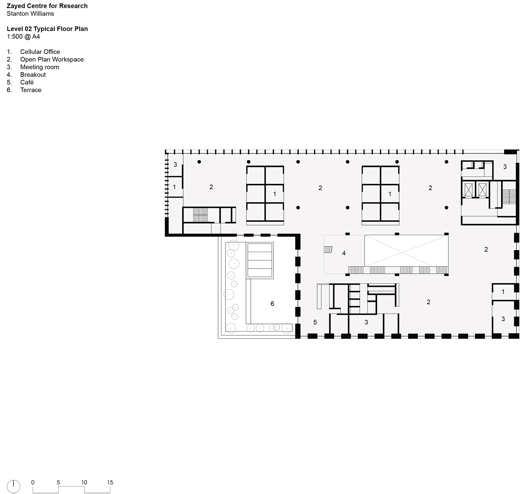
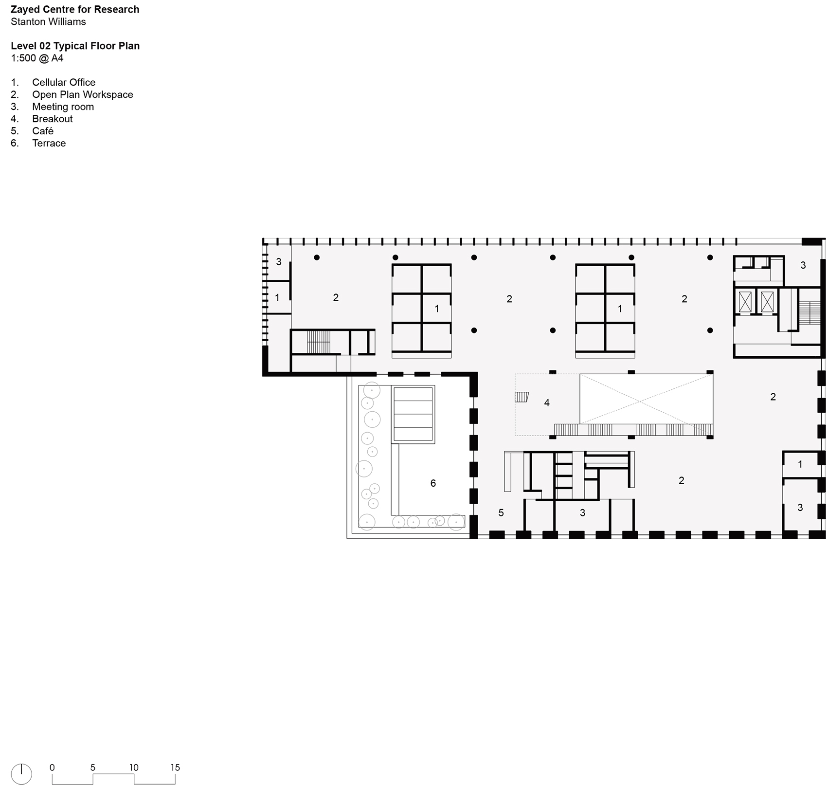
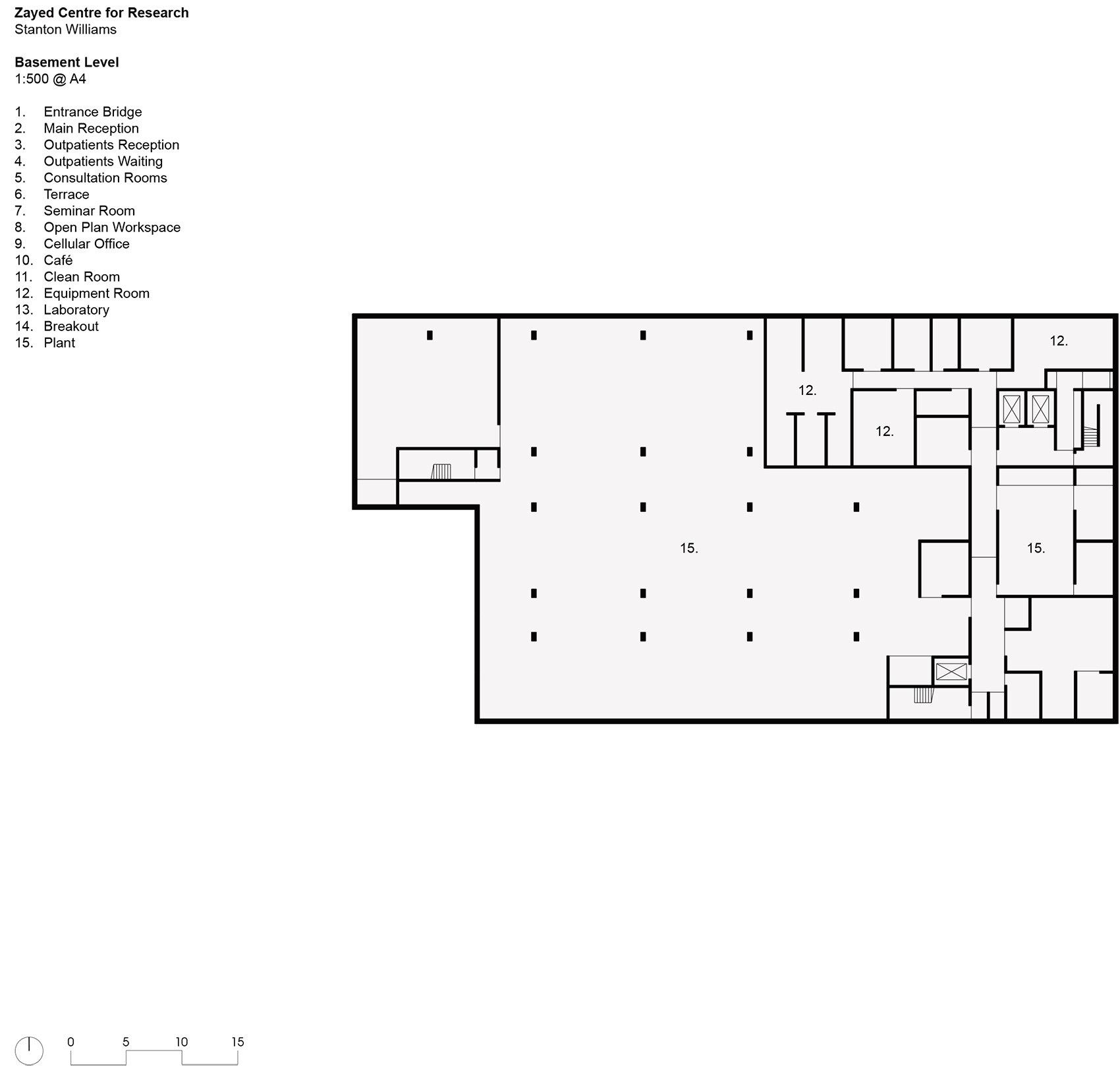
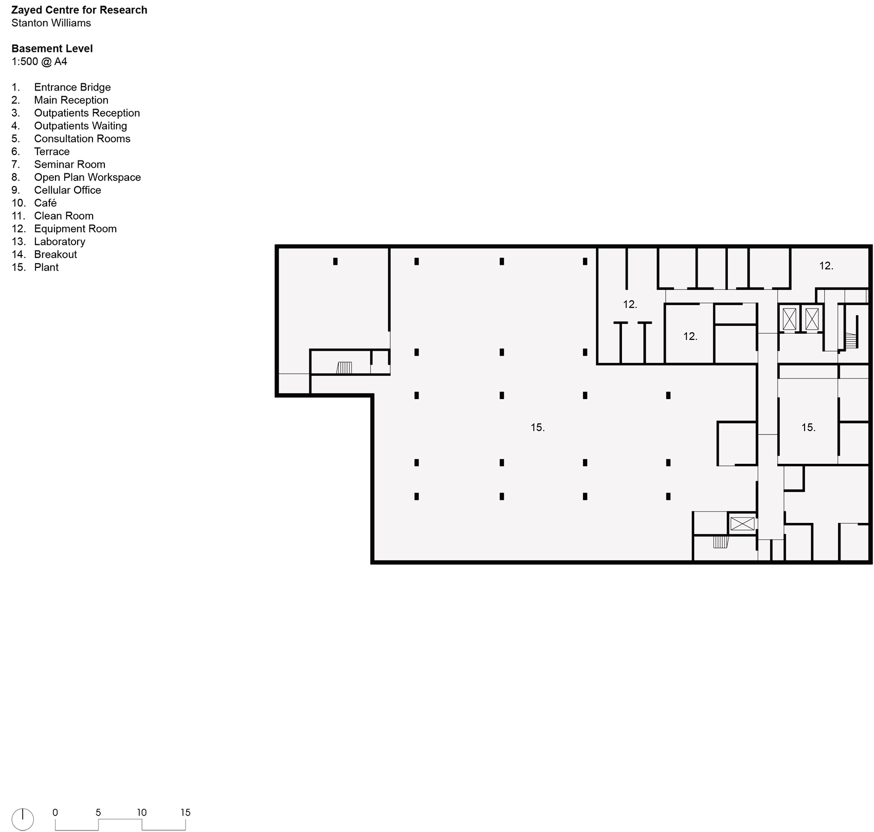
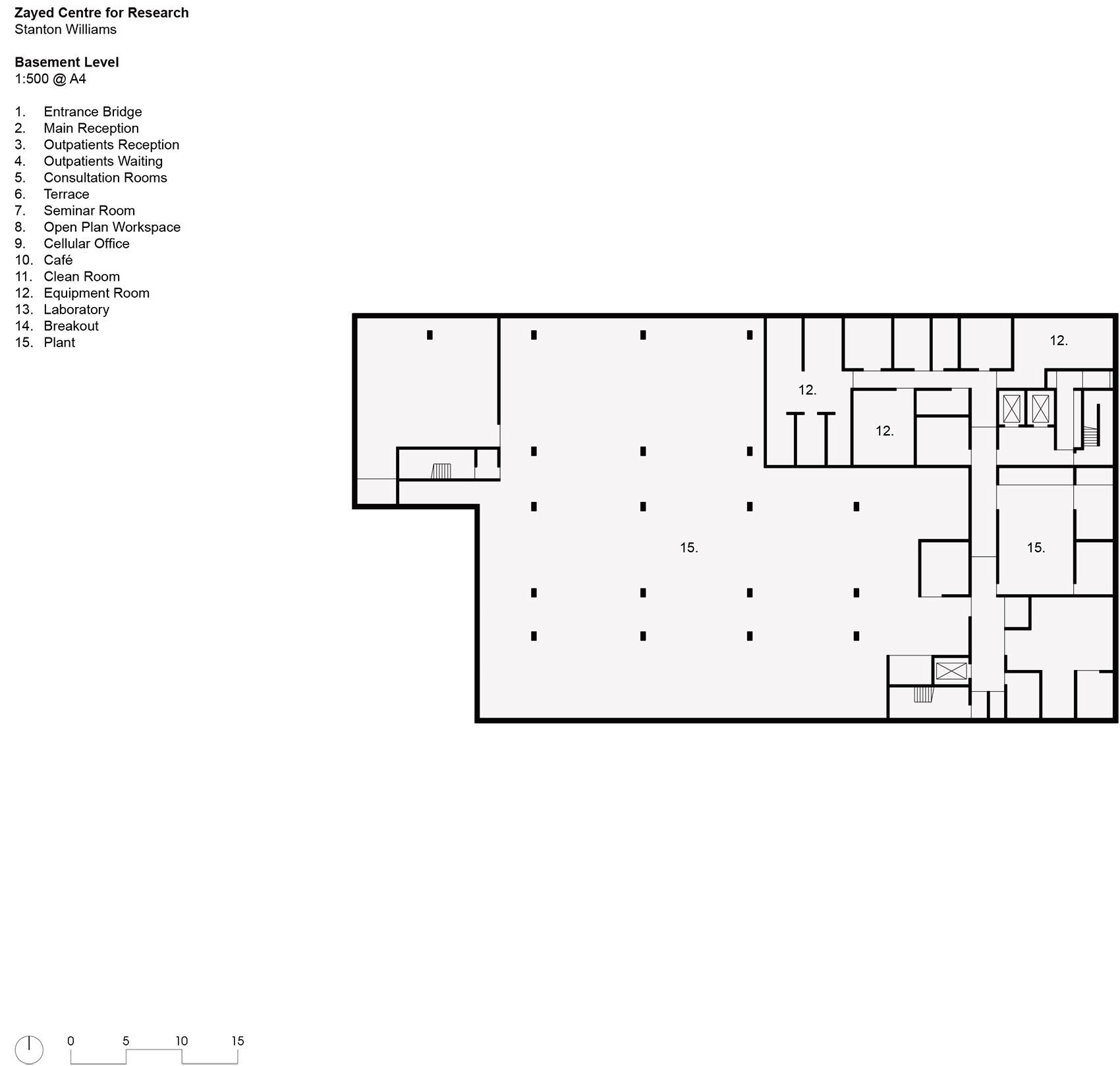
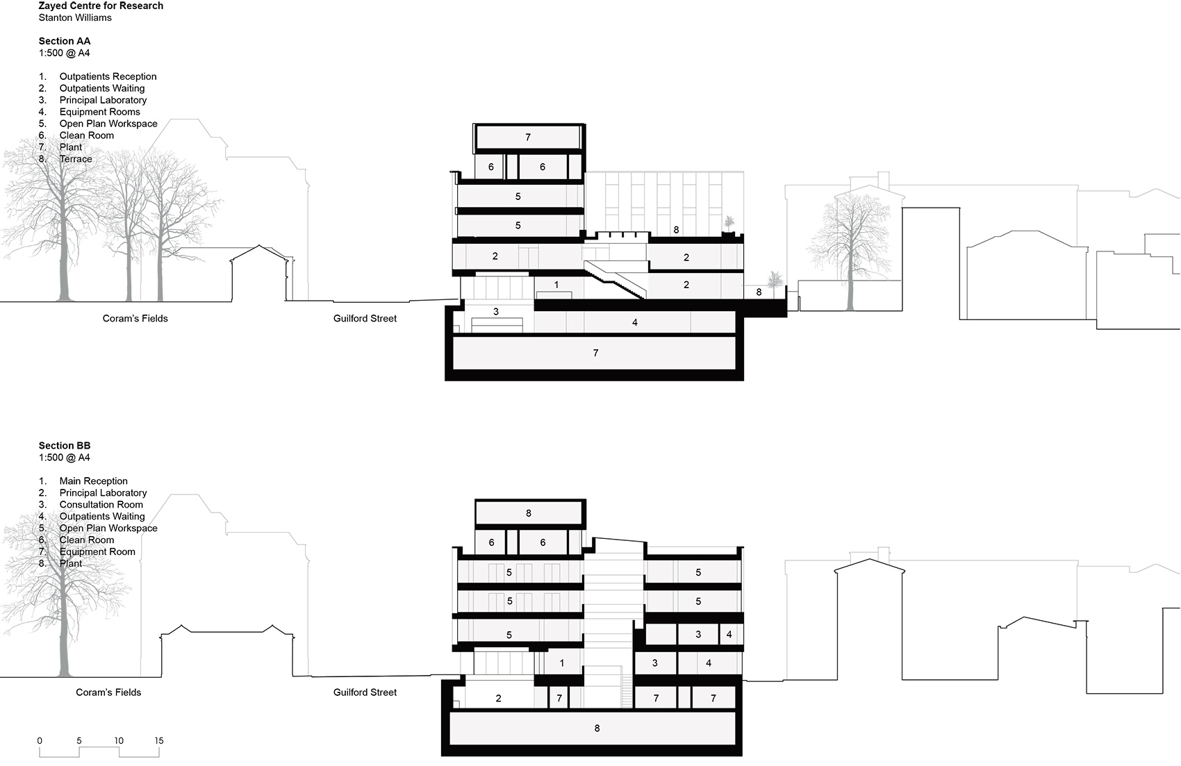
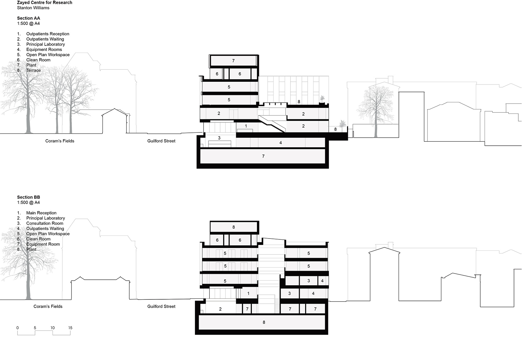
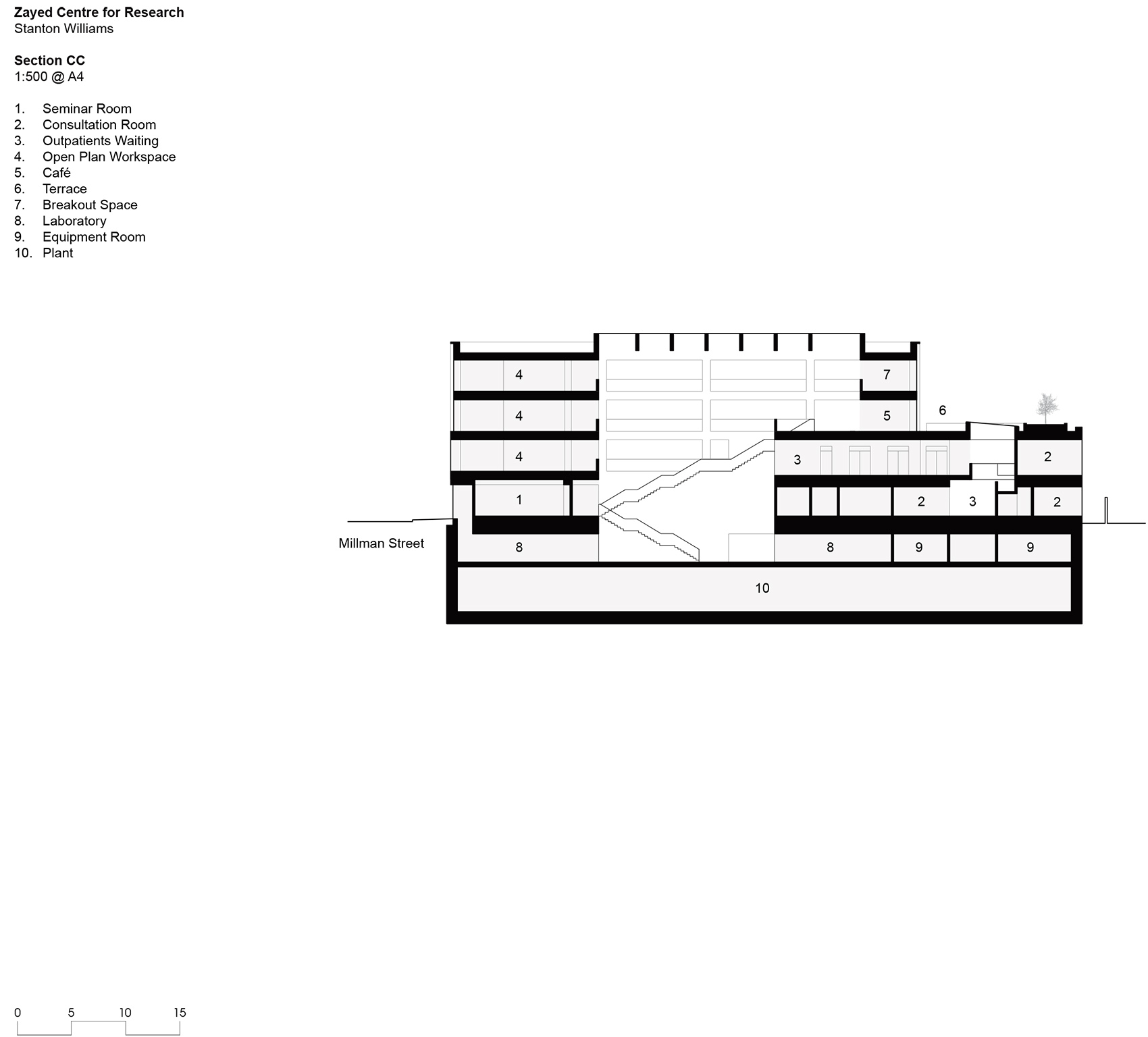
런던의 중심부에 위치한 자이드 어린이 난치병 연구센터는 어린이 난치병의 연구와 치료를 병행하기 위해 설계된 병원이다. 500명의 연구원과 의료 종사자들이 한 지붕 아래에서 혁신적인 치료 개발을 위해 힘쓰고 있다. 8개 층에 걸쳐 학술 연구 공간, 세미나 및 회의 공간, 전문 연구동, 어린이와 젊은이들을 위한 외래 진료동으로 구성되어 있다.


거리에서 본 출입구 홀 
테라코타와 유리로 마감된 외부 건물의 지하에 위치한 2층 높이의 연구동은 자이드 연구 센터 내부 및 바깥 거리에서도 바라볼 수 있다. 연구 센터의 심장과도 같은 연구동은 이 곳을 방문하는 연구자들과 환자들을 맞이하는 시작점의 역할을 하고 있다. 지상층은 시민들에게 연구동 내부의 활동을 가감없이 보여주며, 외부의 심플한 테라코타와 투명한 유리 마감을 통해 투영되는 내부의 연구활동이 공간에서 가장 중요한 행위임을 표현하고 있다.


복층으로 설계된 연구동 주 출입구를 통해 건물로 들어오면 연구동 위에 놓여진 브릿지를 따라 자연스럽게 내부 아트리움으로 접근하게 된다.
건물 전체에서 느껴지는 개방감은 햇빛과 주변도시의 풍광을 자연스럽게 내부로 끌어들인다. 노출된 콘크리트나 유럽산 참나무로 이루어진 차분한 분위기의 내부는 어린 환자들과 그 가족이 질병으로 맞닥뜨린 복잡한 마음을 어루만져주고 편안한 심리 상태를 유지시켜준다.

중앙 아트리움 

외래 진료동 복도 
프로그램 단면도 




728x90'volume.08' 카테고리의 다른 글
[김남형 교수의 '경험의 눈을 가진 평생학습자'] 테슬라 모빌리티 경험의 업데이트와 업그레이드 (0) 2021.03.02 발행인의 편지 (0) 2021.03.02 [박효진 교수의 맛있는 집] 만두, 딤섬, 그리고 얌차 (0) 2021.03.01 [임진우 건축가와 '함께 떠나고 싶은 그곳'] 제주도 2편 (0) 2021.02.27 [이혜진의 파인다이닝] 의료분야 경영 컨설턴트에서 세무법인 택스케어 대표가 되다 (0) 2021.02.26 기쁨병원 강윤식 대표원장 (0) 2021.02.26 포스트 코로나 시대에 주목받는 음압병실 시스템 (0) 2021.02.26 덴마크 선드헤드 의료센터 (0) 2021.02.25